2021年一级造价工程师《案例分析(土建与安装)》模拟卷(一)
搜题
1、某建设项目计算期10年,其中建设期2年。项目建设投资(不含建设期贷款利息)1200万元,第1年投入500万元,全部为投资方自有资金;第2年投入700万元,其中500万元为银行贷款,贷款年利率为6%。贷款偿还方式为:第3年不还本付息,以第3年末的本息和为基准,从第4年开始,分4年等额还本、当年还清当年利息。
项目流动资金投资400万元,在第3年和第4年等额投入,其中仅第3年投入的100万元为投资方自有资金,其余均为银行贷款,贷款年利率为8%,贷款本金在计算期最后一年偿还,当年还清当年利息。
项目第3年的总成本费用(含贷款利息偿还)为900万元,第4年至第10年的总成本费用均为1500万元,其中,第3年至第10年的折旧费均为100万元。
问题:
1.编制项目建设投资贷款还本付息表(结果保留三位小数)和流动资金贷款还本付息表。


2.列式计算项目第3年、第4年和第10年的经营成本。
3.项目的投资额、单位产品价格和年经营成本在初始值的基础上分别变动±10%时对应的财务净现值的计算结果见表1—23。根据该表的数据列式计算各因素的敏感系数,并对3个因素的敏感性进行排序。

4.根据表1—23中的数据绘制单因素敏感性分析图,列式计算并在图中标出单位产品价格的临界点。
(计算结果除要求外均保留2位小数)
项目流动资金投资400万元,在第3年和第4年等额投入,其中仅第3年投入的100万元为投资方自有资金,其余均为银行贷款,贷款年利率为8%,贷款本金在计算期最后一年偿还,当年还清当年利息。
项目第3年的总成本费用(含贷款利息偿还)为900万元,第4年至第10年的总成本费用均为1500万元,其中,第3年至第10年的折旧费均为100万元。
问题:
1.编制项目建设投资贷款还本付息表(结果保留三位小数)和流动资金贷款还本付息表。


2.列式计算项目第3年、第4年和第10年的经营成本。
3.项目的投资额、单位产品价格和年经营成本在初始值的基础上分别变动±10%时对应的财务净现值的计算结果见表1—23。根据该表的数据列式计算各因素的敏感系数,并对3个因素的敏感性进行排序。

4.根据表1—23中的数据绘制单因素敏感性分析图,列式计算并在图中标出单位产品价格的临界点。
(计算结果除要求外均保留2位小数)
本题答案:
问题1:

问题2:
经营成本=总成本费用-折旧费-摊销费-利息支出
第3年的经营成本=900-100-30.9-8=761.10(万元)
第4年的经营成本=1500-100-32.754-24=1343.25(万元)
第10年的经营成本=1500-100-24=1376(万元)
问题3:
E>0,表示评价指标与不确定因素同方向变化;E<0,表示评价指标与不确定因素反方向变化。|E|较大者敏感度系数高。
投资额:(1190-1300)/1300/10%=-0.85(或0.85%)
单位产品价格:(320-1300)/1300/(-10%)=7.54(或7.54%)
年经营成本:(550-1300)/1300/10%=-5.77(或5.77%)
敏感性排序为:单位产品价格>年经营成本>投资额。
问题4:
单位产品价格的临界点为:-1300×10%/(1300-320)=-13.27%
[或1300×10%/(2280-1300)=13.27%]
单因素敏感性分析图如图1—17所示。
问题1:

问题2:
经营成本=总成本费用-折旧费-摊销费-利息支出
第3年的经营成本=900-100-30.9-8=761.10(万元)
第4年的经营成本=1500-100-32.754-24=1343.25(万元)
第10年的经营成本=1500-100-24=1376(万元)
问题3:
E>0,表示评价指标与不确定因素同方向变化;E<0,表示评价指标与不确定因素反方向变化。|E|较大者敏感度系数高。
投资额:(1190-1300)/1300/10%=-0.85(或0.85%)
单位产品价格:(320-1300)/1300/(-10%)=7.54(或7.54%)
年经营成本:(550-1300)/1300/10%=-5.77(或5.77%)
敏感性排序为:单位产品价格>年经营成本>投资额。
问题4:
单位产品价格的临界点为:-1300×10%/(1300-320)=-13.27%
[或1300×10%/(2280-1300)=13.27%]
单因素敏感性分析图如图1—17所示。
2、某总承包企业拟开拓国内某大城市工程承包市场。经调查,该市目前有A、B两个BOT项目将要招标。两个项目建成后经营期限均为15年。为了顺利进行投标,企业经营部将在该市的投标全过程按先后顺序分解为以下几项工作:①投标申请;②接受资格审查;③领取招标文件;④参加投标预备会;⑤参加现场踏勘;⑥编制投标文件;⑦编制项目可行性研究论证报告;⑧投送投标文件;⑨投标文件内容说明与陈述;⑩参加开标会议;⑪签订合同。
经进一步调研,收集和整理出A、B两个项目投资与收益数据,见表1-3-1。

基准折现率为6%,资金时间价值系数见表1-3-2。

若投A项目中标概率为0.7,不中标费用损失80万元;若投B项目中标概率为0.65,不中标费用损失100万元。若投B项目中标并建成经营5年后,可以自行决定是否扩建,如果扩建,扩建投资为4000万元,扩建后8项目每年运营收益增加1000万元。
问题:
1.投标过程的顺序是否妥当,如有不妥请指出。
2.不考虑建设期的影响,列式计算A项目的净现值。
3.计算B项目扩建前后的净现值。
4.判断B项目在5年后是否应该扩建?运用决策树法进行投资方案决策。
(计算结果均保留两位小数)
经进一步调研,收集和整理出A、B两个项目投资与收益数据,见表1-3-1。

基准折现率为6%,资金时间价值系数见表1-3-2。

若投A项目中标概率为0.7,不中标费用损失80万元;若投B项目中标概率为0.65,不中标费用损失100万元。若投B项目中标并建成经营5年后,可以自行决定是否扩建,如果扩建,扩建投资为4000万元,扩建后8项目每年运营收益增加1000万元。
问题:
1.投标过程的顺序是否妥当,如有不妥请指出。
2.不考虑建设期的影响,列式计算A项目的净现值。
3.计算B项目扩建前后的净现值。
4.判断B项目在5年后是否应该扩建?运用决策树法进行投资方案决策。
(计算结果均保留两位小数)
本题答案:
问题1:
投标过程的顺序不妥,不妥之处有:
①参加投标预备会不应在参加现场踏勘之前;
②编制项目可行性研究论证报告不应在编制投标文件之后;
③投标文件内容说明与陈述不应在参加开标会议之前。
问题2:
A项目净现值计算:
PVA=-10000+2000×(P/A,6%,5)+2500×(P/A,6%,5)×(P/F,6%,5)+3000×(P/A,6%,5)×(P/F,6%,10)
=-10000+2000×4.2123+2500×4.2123×0.7474+3000×4.2123×0.5584
=-10000+8424.50+7870.68+7056.44
=13351.72(万元)
问题3:
B项目扩建前总收益净现值:
PVB=-7000+1500×(P/A,6%,5)+2000×(P/A,6%,5)×(P/F,6%,5)+2500×(P/A,6%,5)×(P/F,6%,10)
=-7000+1500×4.2123+2000×4.2123×0.7474+2500×4.2123×0.5584
=-7000+6318.45+6296.55+5880.37
=11495.37(万元)
B项目扩建后总收益净现值:
PVB=11495.37+[1000×(P/A,6%,10)-4000]×(P/F,6%,5)
=11495.37+[1000×7.3601-4000]×0.7474
=11495.37+3360.10×0.7474
=14006.71(万元)
问题4:
因为扩建后的净现值大于扩建前的净现值,所以5年后应该扩建。
画出决策树,表明各方案的概率和相应的净现值,如图1-3-1所示。
计算各机会点期望值并做出投标决策:
点①:0.7×13351.72+0.3×(-80)=9322.20(万元)
点②:0.65×14006.71+0.35×(-100)=9069.36(万元)
因为①机会点的期望利润大,故应投A项目。
问题1:
投标过程的顺序不妥,不妥之处有:
①参加投标预备会不应在参加现场踏勘之前;
②编制项目可行性研究论证报告不应在编制投标文件之后;
③投标文件内容说明与陈述不应在参加开标会议之前。
问题2:
A项目净现值计算:
PVA=-10000+2000×(P/A,6%,5)+2500×(P/A,6%,5)×(P/F,6%,5)+3000×(P/A,6%,5)×(P/F,6%,10)
=-10000+2000×4.2123+2500×4.2123×0.7474+3000×4.2123×0.5584
=-10000+8424.50+7870.68+7056.44
=13351.72(万元)
问题3:
B项目扩建前总收益净现值:
PVB=-7000+1500×(P/A,6%,5)+2000×(P/A,6%,5)×(P/F,6%,5)+2500×(P/A,6%,5)×(P/F,6%,10)
=-7000+1500×4.2123+2000×4.2123×0.7474+2500×4.2123×0.5584
=-7000+6318.45+6296.55+5880.37
=11495.37(万元)
B项目扩建后总收益净现值:
PVB=11495.37+[1000×(P/A,6%,10)-4000]×(P/F,6%,5)
=11495.37+[1000×7.3601-4000]×0.7474
=11495.37+3360.10×0.7474
=14006.71(万元)
问题4:
因为扩建后的净现值大于扩建前的净现值,所以5年后应该扩建。
画出决策树,表明各方案的概率和相应的净现值,如图1-3-1所示。
计算各机会点期望值并做出投标决策:
点①:0.7×13351.72+0.3×(-80)=9322.20(万元)
点②:0.65×14006.71+0.35×(-100)=9069.36(万元)
因为①机会点的期望利润大,故应投A项目。
3、某工程合同工期37天,合同价360万元,采用清单计价模式下的单价合同,分部分项工程量清单项目单价、措施项目单价均采用承包商的报价,规费和税金为人、材、机费与管理费、利润之和的10%。业主草拟的部分施工合同条款内容如下:
1、分部分项工程量清单项目中工程量偏差风险由投标人承担。
2、安全文明措施项目费,根据分部分项工程量清单项目工程量的变化幅度按比例调整,单价措施项目费不予调整。
3、材料实际购买价格与招标文件中列出的材料暂估价相比,变化幅度不超过10%时,价格不予调整,超过10%时,可以按实际价格调整。
4、如果施工过程中发生极其恶劣的不利自然条件,工期可以顺延,损失费用均由承包商承担。
在工程开工前,承包商提交了施工网络进度计划,如同4.1所示,并得到监理工程师的批准。

施工过程中发生了如下事件:
事件1:清单中D工作的综合单价为450元/m3,在D工作开始前,设计单位修改了设计,D工作的工程量由清单工程量4000m3增加到4800m3,D工作工程量的增加导致相应措施费用增加2500元。
事件2:在E工作施工中,承包商采购了业主推荐的某设备制造厂生产的工程设备,设备到场后检验发现缺少一关键配件,使该设备无法正常安装,导致E工作作业时间拖延2天,窝工人工费损失2000元,窝工机械费损失1500元。
事件3:H工作是一项装饰工程,其饰面石材由业主从外地采购,由石材厂家供货至现场。但因石材厂所在地连续多天遭遇季节性大雨,使得石材运至现场的时间拖延,造成H工作晚开始5天,窝工人工费损失8000元,窝工机械费损失3000元。
问题:
1.该施工网络进度计划的关键工作有哪些?H工作的总时差为几天?
2.指出业主草拟的合同条款中有哪些不妥之处,简要说明如何修改
3.对于事件1,经业主与承包商协商确定,D工作全部工程量按综合单价430元/m3结算,承包商可增加的工程价款是多少?可增加的工期是多少?
4.对于事件2,承包商是否可向业主进行工期和费用索赔?为什么?若可以索赔,工期和费用索赔各是多少?
5.对于事件3,承包商是否可向业主进行工期和费用索赔?为什么?若可以索赔,工期和费用索赔各是多少?
1、分部分项工程量清单项目中工程量偏差风险由投标人承担。
2、安全文明措施项目费,根据分部分项工程量清单项目工程量的变化幅度按比例调整,单价措施项目费不予调整。
3、材料实际购买价格与招标文件中列出的材料暂估价相比,变化幅度不超过10%时,价格不予调整,超过10%时,可以按实际价格调整。
4、如果施工过程中发生极其恶劣的不利自然条件,工期可以顺延,损失费用均由承包商承担。
在工程开工前,承包商提交了施工网络进度计划,如同4.1所示,并得到监理工程师的批准。

施工过程中发生了如下事件:
事件1:清单中D工作的综合单价为450元/m3,在D工作开始前,设计单位修改了设计,D工作的工程量由清单工程量4000m3增加到4800m3,D工作工程量的增加导致相应措施费用增加2500元。
事件2:在E工作施工中,承包商采购了业主推荐的某设备制造厂生产的工程设备,设备到场后检验发现缺少一关键配件,使该设备无法正常安装,导致E工作作业时间拖延2天,窝工人工费损失2000元,窝工机械费损失1500元。
事件3:H工作是一项装饰工程,其饰面石材由业主从外地采购,由石材厂家供货至现场。但因石材厂所在地连续多天遭遇季节性大雨,使得石材运至现场的时间拖延,造成H工作晚开始5天,窝工人工费损失8000元,窝工机械费损失3000元。
问题:
1.该施工网络进度计划的关键工作有哪些?H工作的总时差为几天?
2.指出业主草拟的合同条款中有哪些不妥之处,简要说明如何修改
3.对于事件1,经业主与承包商协商确定,D工作全部工程量按综合单价430元/m3结算,承包商可增加的工程价款是多少?可增加的工期是多少?
4.对于事件2,承包商是否可向业主进行工期和费用索赔?为什么?若可以索赔,工期和费用索赔各是多少?
5.对于事件3,承包商是否可向业主进行工期和费用索赔?为什么?若可以索赔,工期和费用索赔各是多少?
本题答案:
问题1:
该施工网络进度计划的关键工作有: A、E、G工作。
H工作的总时差为:37-36=1(天)
问题2:
业主草拟的合同条款中有以下不妥之处:
(1)分部分项工程量清单项目中工程量偏差风险由投标人承担不妥。工程量清单中的偏差应由业主承担。
(2)“单价措施项目费不予调整”不妥。单价措施项目费应按清单计价规范的规定进行调整,但承包人应先将调整后的施工方案报发包人批准。
(3)“材料实际购买价格与招标文件中列出的材料暂估价相比,变化幅度不超过10%时,价格不予调整,超过10%时,可以按实际价格调整”不妥。涉及暂估价的材料在结算时,应按发承包双方最终认可的价格计入相应清单项目的综合单价。
(4)“如果施工过程中发生极其恶劣的不利自然条件,损失费用均由承包商承担”不妥。不可抗力造成的损失应按以下原则处理:承包商仅承担自己设备的损害、承包方人员伤亡损失以及停工损失,其他的损失应由业主承担。
问题3:
承包商可增加的工程价款为:(4800×430-4000×450+2500)×(1+10%)=293150(元)
D工作每天完成的工程量=4000/10=400m3
可增加的工期=(4800-4000)/400=2(天)
但D工作在非关键线路上,且总时差为6天,因此工期不予增加。
问题4:
不能向业主就费用和工期提出索赔。因为设备是由承包商采购,设备缺少配件不能按计划安装不是业主的责任。
问题5:
(1)可以向业主就费用和工期提出索赔。因为石材是由业主采购,石材未能按时到场是属于业主的责任,由此造成的工期和费用损失应由业主承担。H工作的总时差为1天,H工作拖延了5天,因此应给予工期补偿。
(2)可索赔的工期为:5-1=4(天)
(3)可索赔的费用为:(8000+3000)×(1+10%)=12100(元)
问题1:
该施工网络进度计划的关键工作有: A、E、G工作。
H工作的总时差为:37-36=1(天)
问题2:
业主草拟的合同条款中有以下不妥之处:
(1)分部分项工程量清单项目中工程量偏差风险由投标人承担不妥。工程量清单中的偏差应由业主承担。
(2)“单价措施项目费不予调整”不妥。单价措施项目费应按清单计价规范的规定进行调整,但承包人应先将调整后的施工方案报发包人批准。
(3)“材料实际购买价格与招标文件中列出的材料暂估价相比,变化幅度不超过10%时,价格不予调整,超过10%时,可以按实际价格调整”不妥。涉及暂估价的材料在结算时,应按发承包双方最终认可的价格计入相应清单项目的综合单价。
(4)“如果施工过程中发生极其恶劣的不利自然条件,损失费用均由承包商承担”不妥。不可抗力造成的损失应按以下原则处理:承包商仅承担自己设备的损害、承包方人员伤亡损失以及停工损失,其他的损失应由业主承担。
问题3:
承包商可增加的工程价款为:(4800×430-4000×450+2500)×(1+10%)=293150(元)
D工作每天完成的工程量=4000/10=400m3
可增加的工期=(4800-4000)/400=2(天)
但D工作在非关键线路上,且总时差为6天,因此工期不予增加。
问题4:
不能向业主就费用和工期提出索赔。因为设备是由承包商采购,设备缺少配件不能按计划安装不是业主的责任。
问题5:
(1)可以向业主就费用和工期提出索赔。因为石材是由业主采购,石材未能按时到场是属于业主的责任,由此造成的工期和费用损失应由业主承担。H工作的总时差为1天,H工作拖延了5天,因此应给予工期补偿。
(2)可索赔的工期为:5-1=4(天)
(3)可索赔的费用为:(8000+3000)×(1+10%)=12100(元)
4、某工程采用了工程量清单计价方式确定了中标人,业主与中标人签订了单价合同,合同内容包括六个分项工程,其分项工程量、费用、计划时间见表5-1。该工程安全文明施工等总价措施项目费为6万元,其他总价措施项目费为10万元;暂列金额为8万元;管理费以分项工程中人、材、机费用之和为计算基数,费率为10%;利润和风险费以人、材、机、管理费之和为计算基数,费率为7%;规费以人材机费用与管理费和利润之和为计算基数,费率为6%;增值税销项税率为9%;人材机费用与管理费均不含可抵扣的进项税,分部分项工程费、措施项目费、其它项目费均不含规费和销项税。合同工期为8个月。

有关工程价款支付条件如下:
1.开工前业主向承包商支付分项工程费(含相应的规费和增值税销项税)的25%作为材料预付款,在开工后的第4~6月分三次平均扣回。
2.安全文明施工等总价措施项目费分别于开工前和开工后的第1个月分两次平均支付,其他总价措施项目费在1~5个月分五次平均支付。
3.业主按当月承包商已完工程款的90%支付(包括措施项目费)。
4.暂列金额计入合同价,按实际发生额与工程进度款同期支付。
5.工程质量保证金为工程款的3%,竣工结算月一次扣留。
工程施工期间,经监理人核实的有关事项如下:
1.第3个月发生现场签证计日工费3.0万元。
2.因劳务作业队伍调整,使分项工程C的开始时间推迟1个月,且作业时间延长1个月。
3.因业主提供的现场作业条件不充分,使分项工程D增加人、材、机费用之和为6.2万元,但作业时间没变。
4.因设计变更使分项工程E增加工程量120㎡,(其价格执行原综合单价),作业时间延长1个月。
5.其余作业内容及时间没有变化,每个分项工程在施工期间各月均为匀速施工。
问题:
1.计算本工程的签约合同价、工程预付款和首次支付的措施费。
2.计算3、4月份已完工程款和应支付的工程款。
3.计算实际合同价款、合同增加额及最终施工单位应得工程款。
(计算过程和结果以万元为单位保留3位小数)

有关工程价款支付条件如下:
1.开工前业主向承包商支付分项工程费(含相应的规费和增值税销项税)的25%作为材料预付款,在开工后的第4~6月分三次平均扣回。
2.安全文明施工等总价措施项目费分别于开工前和开工后的第1个月分两次平均支付,其他总价措施项目费在1~5个月分五次平均支付。
3.业主按当月承包商已完工程款的90%支付(包括措施项目费)。
4.暂列金额计入合同价,按实际发生额与工程进度款同期支付。
5.工程质量保证金为工程款的3%,竣工结算月一次扣留。
工程施工期间,经监理人核实的有关事项如下:
1.第3个月发生现场签证计日工费3.0万元。
2.因劳务作业队伍调整,使分项工程C的开始时间推迟1个月,且作业时间延长1个月。
3.因业主提供的现场作业条件不充分,使分项工程D增加人、材、机费用之和为6.2万元,但作业时间没变。
4.因设计变更使分项工程E增加工程量120㎡,(其价格执行原综合单价),作业时间延长1个月。
5.其余作业内容及时间没有变化,每个分项工程在施工期间各月均为匀速施工。
问题:
1.计算本工程的签约合同价、工程预付款和首次支付的措施费。
2.计算3、4月份已完工程款和应支付的工程款。
3.计算实际合同价款、合同增加额及最终施工单位应得工程款。
(计算过程和结果以万元为单位保留3位小数)
本题答案:
问题1:
(1)合同价为:(43.16+6+10+8)×(1+6%)×(1+9%)=77.597(万元)
(2)材料预付款为:43.16×1.06×1.09×25%=12.467(万元)
(3)安全文明施工等总价措施项目费为:6×1.06×1.09×50%×90%=3.120(万元)
问题2:
第3个月承包商已完应付:
(1)3.60×1/3+10.08/4=3.72(万元)
(2)10/5=2万元
(3)3+6.2×1.1×1.07/4=4.824(万元)
已完工程款:(3.72+2+4.824)×1.06×1.09=12.183(万元)
应支付工程款:12.183×90%=10.965(万元)
第4个月承包商已完应付:
(1)8.80/4+10.08/4+(8.28+120×230/10000)/4=7.48(万元)
(2)10/5=2(万元)
(3)6.2×1.1×1.07/4=1.824(万元)
已完工程款:(7.48+2+1.824)×1.06×1.09=13.061(万元)
应支付工程款:13.061×90%-12.467/3=7.599(万元)
问题3:
实际造价
(1)43.16(万元)
(2)6+10=16(万元)
(3)3+6.2×1.1×1.07+120×230/10000=13.057(万元)
实际合同价款合计:(43.16+16+13.057)×1.06×1.09=83.440(万元)
合同增加额:83.440-77.597=5.843(万元)
扣留保证金后工程实际造价:83.440×(1-3%)=80.937(万元)
最终施工单位应得工程款:80.937-83.440×90%=5.841(万元)
问题1:
(1)合同价为:(43.16+6+10+8)×(1+6%)×(1+9%)=77.597(万元)
(2)材料预付款为:43.16×1.06×1.09×25%=12.467(万元)
(3)安全文明施工等总价措施项目费为:6×1.06×1.09×50%×90%=3.120(万元)
问题2:
第3个月承包商已完应付:
(1)3.60×1/3+10.08/4=3.72(万元)
(2)10/5=2万元
(3)3+6.2×1.1×1.07/4=4.824(万元)
已完工程款:(3.72+2+4.824)×1.06×1.09=12.183(万元)
应支付工程款:12.183×90%=10.965(万元)
第4个月承包商已完应付:
(1)8.80/4+10.08/4+(8.28+120×230/10000)/4=7.48(万元)
(2)10/5=2(万元)
(3)6.2×1.1×1.07/4=1.824(万元)
已完工程款:(7.48+2+1.824)×1.06×1.09=13.061(万元)
应支付工程款:13.061×90%-12.467/3=7.599(万元)
问题3:
实际造价
(1)43.16(万元)
(2)6+10=16(万元)
(3)3+6.2×1.1×1.07+120×230/10000=13.057(万元)
实际合同价款合计:(43.16+16+13.057)×1.06×1.09=83.440(万元)
合同增加额:83.440-77.597=5.843(万元)
扣留保证金后工程实际造价:83.440×(1-3%)=80.937(万元)
最终施工单位应得工程款:80.937-83.440×90%=5.841(万元)
5、土建工程:
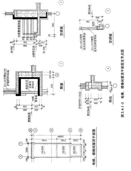
某小高层住宅楼建筑部分设计如图2.6.Ⅰ-1所示,共12层。每层层高均为3m,电梯机房与楼梯间部分凸出屋面。墙体除注明者外均为200mm厚加气混凝土墙,轴线位于墙中。外墙采用50mm厚聚苯板保温。楼面做法为20mm厚水泥砂浆抹面压光。楼层钢筋混凝土板厚100mm,内墙做法为20mm厚混合砂浆抹面压光。为简化计算首层建筑面积按标准层建筑面积计算,阳台为全封闭阳台,⑤和⑦轴上混凝土柱超过墙体宽度部分建筑面积忽略不计,门窗洞口尺寸见表2.6.Ⅰ-1,工程做法见表2.6.Ⅰ-2。




问题:
1.依据《建筑工程建筑面积计算规范》GB/T50353--2013的规定,计算小高层住宅楼的建筑面积。将计算过程、计量单位及计算结果填入表2.6.Ⅰ-3“建筑面积计算”。

2.依据《房屋建筑与装饰工程工程量计算规范》GB50854--2013的工程量计算规则,计算小高层住宅楼二层卧室1、卧室2、主卫的楼面工程量以及墙面工程量,将计算过程、计量单位及计算结果按要求填入表2.6.Ⅰ-4“分部分项工程量计算”。

3.结合图纸及表2.6.Ⅰ-2“工程做法”进行分部分项工程量清单的项目特征描述,将描述和分项计量单位填入答题纸表2.6.Ⅰ-5“分部分项工程量清单”。

(计算结果均保留两位小数)
某小高层住宅楼建筑部分设计如图2.6.Ⅰ-1所示,共12层。每层层高均为3m,电梯机房与楼梯间部分凸出屋面。墙体除注明者外均为200mm厚加气混凝土墙,轴线位于墙中。外墙采用50mm厚聚苯板保温。楼面做法为20mm厚水泥砂浆抹面压光。楼层钢筋混凝土板厚100mm,内墙做法为20mm厚混合砂浆抹面压光。为简化计算首层建筑面积按标准层建筑面积计算,阳台为全封闭阳台,⑤和⑦轴上混凝土柱超过墙体宽度部分建筑面积忽略不计,门窗洞口尺寸见表2.6.Ⅰ-1,工程做法见表2.6.Ⅰ-2。




问题:
1.依据《建筑工程建筑面积计算规范》GB/T50353--2013的规定,计算小高层住宅楼的建筑面积。将计算过程、计量单位及计算结果填入表2.6.Ⅰ-3“建筑面积计算”。

2.依据《房屋建筑与装饰工程工程量计算规范》GB50854--2013的工程量计算规则,计算小高层住宅楼二层卧室1、卧室2、主卫的楼面工程量以及墙面工程量,将计算过程、计量单位及计算结果按要求填入表2.6.Ⅰ-4“分部分项工程量计算”。

3.结合图纸及表2.6.Ⅰ-2“工程做法”进行分部分项工程量清单的项目特征描述,将描述和分项计量单位填入答题纸表2.6.Ⅰ-5“分部分项工程量清单”。

(计算结果均保留两位小数)
本题答案:
问题1:

问题2:

问题3:
问题1:

问题2:

问题3:
6、管道工程:
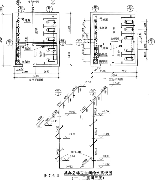
某办公楼卫生间给排水系统工程设计如图所示(图7.6.Ⅱ)。
给水管道系统及卫生器具有关分部分项工程量清单项目的统一编码,见表7.6.Ⅱ-1。

说明:
1.图示为某办公楼卫生间,共三层,层高为3m,图中平面尺寸以“mm”计,标高均以“m”计。墙体厚度为240mm。
2.给水管道均为镀锌钢管,螺纹连接。给水管道与墙体的中心距离为200mm。
3.卫生器具全部为明装,安装要求均符合《全国统一安装工程预算定额》所指定标准图的要求,给水管道工程量计算至与大便器、小便器、洗面盆支管连接处止。其安装方式为:蹲式大便器为手压阀冲洗:挂式小便器为延时自闭式冲洗阀;洗脸盆为普通冷水嘴;混凝土拖布池为500×600落地式安装。普通水龙头,排水地漏带水封;立管检查口设在一、三层排水立管上,距地面0.5m处。
4.给排水管道穿外墙均采用防水钢套管,穿内墙及楼板均采用普通钢套管。
5.给排水管道安装完毕,按规范进行消毒、冲洗、水压试验和试漏。

某单位参与投标一碳钢设备制作安装项目,该设备净重1000kg,其中:设备筒体部分净重750kg,封头、法兰等净重为250kg,该单位根据类似设备制作安装资料确定本设备制作安装有关数据如下:
(1)设备筒体制作安装钢材损耗率为8%,封头、法兰等钢材损耗率为50%。钢材平均价格为6000元/t,其他辅助材料费为2140元。
(2)基本用工:基本工作时间为100小时,辅助工作时间为24小时,准备与结束工作时间为20小时,其他必须耗用时间为工作延续时间的10%。其他用工(包括超运距和辅助用工)为5个工日,人工幅度差为12%,综合工日单价为50元。
(3)施工机械使用费为2200元。
(4)企业管理费、利润分别按人工费的60%、40%计算。
问题:
1.根据图7.6.Ⅱ所示,按照《通用安装工程工程量计算规范》GB50856--2013及其有关规定,完成以下内容:
(1)计算出所有给水管道的清单工程量,并写出其计算过程。
(2)编列出给水管道系统及卫生器具的分部分项工程量清单项目,相关数据填入表7.6.Ⅱ-2“分部分项工程量清单表”内。

2.根据题中数据,计算碳钢设备制作安装工程的以下内容,并写出其计算过程:
(1)计算该设备制作安装需要的钢材、钢材综合损耗率、材料费用。
(2)计算该设备制作安装的时间定额(基本用工),该台设备制作安装企业所消耗工日数量、人工费用。
(3)计算出该设备制作安装的工程量清单综合单价。
(计算结果均保留两位小数)
某办公楼卫生间给排水系统工程设计如图所示(图7.6.Ⅱ)。
给水管道系统及卫生器具有关分部分项工程量清单项目的统一编码,见表7.6.Ⅱ-1。

说明:
1.图示为某办公楼卫生间,共三层,层高为3m,图中平面尺寸以“mm”计,标高均以“m”计。墙体厚度为240mm。
2.给水管道均为镀锌钢管,螺纹连接。给水管道与墙体的中心距离为200mm。
3.卫生器具全部为明装,安装要求均符合《全国统一安装工程预算定额》所指定标准图的要求,给水管道工程量计算至与大便器、小便器、洗面盆支管连接处止。其安装方式为:蹲式大便器为手压阀冲洗:挂式小便器为延时自闭式冲洗阀;洗脸盆为普通冷水嘴;混凝土拖布池为500×600落地式安装。普通水龙头,排水地漏带水封;立管检查口设在一、三层排水立管上,距地面0.5m处。
4.给排水管道穿外墙均采用防水钢套管,穿内墙及楼板均采用普通钢套管。
5.给排水管道安装完毕,按规范进行消毒、冲洗、水压试验和试漏。

某单位参与投标一碳钢设备制作安装项目,该设备净重1000kg,其中:设备筒体部分净重750kg,封头、法兰等净重为250kg,该单位根据类似设备制作安装资料确定本设备制作安装有关数据如下:
(1)设备筒体制作安装钢材损耗率为8%,封头、法兰等钢材损耗率为50%。钢材平均价格为6000元/t,其他辅助材料费为2140元。
(2)基本用工:基本工作时间为100小时,辅助工作时间为24小时,准备与结束工作时间为20小时,其他必须耗用时间为工作延续时间的10%。其他用工(包括超运距和辅助用工)为5个工日,人工幅度差为12%,综合工日单价为50元。
(3)施工机械使用费为2200元。
(4)企业管理费、利润分别按人工费的60%、40%计算。
问题:
1.根据图7.6.Ⅱ所示,按照《通用安装工程工程量计算规范》GB50856--2013及其有关规定,完成以下内容:
(1)计算出所有给水管道的清单工程量,并写出其计算过程。
(2)编列出给水管道系统及卫生器具的分部分项工程量清单项目,相关数据填入表7.6.Ⅱ-2“分部分项工程量清单表”内。

2.根据题中数据,计算碳钢设备制作安装工程的以下内容,并写出其计算过程:
(1)计算该设备制作安装需要的钢材、钢材综合损耗率、材料费用。
(2)计算该设备制作安装的时间定额(基本用工),该台设备制作安装企业所消耗工日数量、人工费用。
(3)计算出该设备制作安装的工程量清单综合单价。
(计算结果均保留两位小数)
本题答案:
问题1:
(1)给水管道工程量的计算:
①DN50的镀锌钢管工程量的计算式:
1.5+(3.6-0.2)=1.5+3.4=4.9(m)
②DN32的镀锌钢管工程量的计算式:
(5-0.2-0.2)+(1+0.45)+(1+1.9+3)=11.95(m)
③DN25的镀锌钢管工程量的计算式:
(6.45-0.45)+(7.9-4.9)+[(1.08+0.83+0.54+0.9+0.9)]×3=6+3+12.75=21.75(m)
④DN20的镀锌钢管工程量的计算式:
(7.2-6.45)+[(0.69+0.8)+(0.36+0.75+0.75)]×3=0.75+10.05=10.8(m)
⑤DN15的镀锌钢管工程量的计算式:
[0.91+0.25+(6.8-6.45)+0.75]×3=2.26×3=6.78(m)
(2)填表:

问题2:
(1)设备制作安装所需钢材:0.75×(1+8%)+0.25×(1+50%)=1.185(t)
设备制作安装的钢材综合损耗率:(1.185-1)×100%=18.5%
该设备制作安装的材料费:1.185×6000+2140=9250(元)
(2)该设备制作安装的时间定额:
设制作安装设备所用的工作延续时间为X,即:
X=(100+24+20)+0.1X
X=160(小时/台)=20(工日/台)
设备制作安装企业所消耗的工日数量是:
(时间定额+其他用工)×(1+人工幅度差)=(20+5)×(1+12%)=25×1.12=28(工日)
该设备制作安装的人工费用是:28×50=1400(元)
(3)该设备制作安装工程量清单的综合单价:
人工费+材料费+机械费+企业管理费+利润=1400+9250+2200+(1400×60%)+(1400×40%)=1400+9250+2200+840+560=14250(元)
【解析】
清单填写时,工程量应分DN50、DN32、DN25、DN20、DN15五部分计算,每部分计算分立管、水平管,立管分右、左。
DN32钢管:水平管长度=5-0.2-0.2;立管长度=(1+0.45);左边长度+(1+1.9+3)
DN25钢管:水平管长度=1.08+0.83+0.54+0.9+0.9;立管1长度=6.45-0.45;立管2长度=7.9-4.9
DN20钢管:水平管长度=0.69+0.8+0.36+0.75+0.75;立管长度=7.2-6.45
工作延续时间=基本工作时间+辅助工作时间+准备与结束时间+其他耗用时间
人工定额时间=(工作延续时间+其他用工时间)×(1+人工幅度差)
问题1:
(1)给水管道工程量的计算:
①DN50的镀锌钢管工程量的计算式:
1.5+(3.6-0.2)=1.5+3.4=4.9(m)
②DN32的镀锌钢管工程量的计算式:
(5-0.2-0.2)+(1+0.45)+(1+1.9+3)=11.95(m)
③DN25的镀锌钢管工程量的计算式:
(6.45-0.45)+(7.9-4.9)+[(1.08+0.83+0.54+0.9+0.9)]×3=6+3+12.75=21.75(m)
④DN20的镀锌钢管工程量的计算式:
(7.2-6.45)+[(0.69+0.8)+(0.36+0.75+0.75)]×3=0.75+10.05=10.8(m)
⑤DN15的镀锌钢管工程量的计算式:
[0.91+0.25+(6.8-6.45)+0.75]×3=2.26×3=6.78(m)
(2)填表:

问题2:
(1)设备制作安装所需钢材:0.75×(1+8%)+0.25×(1+50%)=1.185(t)
设备制作安装的钢材综合损耗率:(1.185-1)×100%=18.5%
该设备制作安装的材料费:1.185×6000+2140=9250(元)
(2)该设备制作安装的时间定额:
设制作安装设备所用的工作延续时间为X,即:
X=(100+24+20)+0.1X
X=160(小时/台)=20(工日/台)
设备制作安装企业所消耗的工日数量是:
(时间定额+其他用工)×(1+人工幅度差)=(20+5)×(1+12%)=25×1.12=28(工日)
该设备制作安装的人工费用是:28×50=1400(元)
(3)该设备制作安装工程量清单的综合单价:
人工费+材料费+机械费+企业管理费+利润=1400+9250+2200+(1400×60%)+(1400×40%)=1400+9250+2200+840+560=14250(元)
【解析】
清单填写时,工程量应分DN50、DN32、DN25、DN20、DN15五部分计算,每部分计算分立管、水平管,立管分右、左。
DN32钢管:水平管长度=5-0.2-0.2;立管长度=(1+0.45);左边长度+(1+1.9+3)
DN25钢管:水平管长度=1.08+0.83+0.54+0.9+0.9;立管1长度=6.45-0.45;立管2长度=7.9-4.9
DN20钢管:水平管长度=0.69+0.8+0.36+0.75+0.75;立管长度=7.2-6.45
工作延续时间=基本工作时间+辅助工作时间+准备与结束时间+其他耗用时间
人工定额时间=(工作延续时间+其他用工时间)×(1+人工幅度差)
7、电气安装工程:
1.图2-6-5所示为某综合楼底层会议室的照明平面图。

说明:
(1)照明配电箱AZM电源由本层总配电箱引来。
(2)管路为镀锌电线管φ20mm或φ25mm沿墙、楼板暗配,顶管敷设标高除雨篷为4m外,其余均为5m。管内穿绝缘导线BV-5002.5mm2。管内穿线管径选择:3根线选用φ20mm镀锌电线管;4~5根线选用φ25mm镀锌电线管。所有管路内均带一根专用接地线(PE线)。
(3)配管水平长度见图2-6-5括号内数字,单位为m。
2.照明工程的相关定额见表2-6-13。

3.该工程的人工费单价为80元/工日,管理费和利润分别按人工费的50%和30%计算。
4.相关分部分项工程量清单项目统一编码见表2-6-14。


问题:
(1)按照背景资料1~4和图2-6-5所示内容,根据《建设工程工程量清单计价规范》GB50500--2013和《通用安装工程工程量计算规范》GB50856--2013的规定,分别列式计算管、线工程量,将计算结果填入答题纸上,并编制该工程的“分部分项工程和单价措施项目清单与计价表”。
(2)设定该工程镀锌电线管φ20mm暗配的清单工程量为70m,其余条件均不变,根据上述相关定额计算镀锌电线管φ20mm暗配项目的综合单价,并填入“综合单价分析表”中。
(保留两位小数)
1.图2-6-5所示为某综合楼底层会议室的照明平面图。

说明:
(1)照明配电箱AZM电源由本层总配电箱引来。
(2)管路为镀锌电线管φ20mm或φ25mm沿墙、楼板暗配,顶管敷设标高除雨篷为4m外,其余均为5m。管内穿绝缘导线BV-5002.5mm2。管内穿线管径选择:3根线选用φ20mm镀锌电线管;4~5根线选用φ25mm镀锌电线管。所有管路内均带一根专用接地线(PE线)。
(3)配管水平长度见图2-6-5括号内数字,单位为m。
2.照明工程的相关定额见表2-6-13。

3.该工程的人工费单价为80元/工日,管理费和利润分别按人工费的50%和30%计算。
4.相关分部分项工程量清单项目统一编码见表2-6-14。


问题:
(1)按照背景资料1~4和图2-6-5所示内容,根据《建设工程工程量清单计价规范》GB50500--2013和《通用安装工程工程量计算规范》GB50856--2013的规定,分别列式计算管、线工程量,将计算结果填入答题纸上,并编制该工程的“分部分项工程和单价措施项目清单与计价表”。
(2)设定该工程镀锌电线管φ20mm暗配的清单工程量为70m,其余条件均不变,根据上述相关定额计算镀锌电线管φ20mm暗配项目的综合单价,并填入“综合单价分析表”中。
(保留两位小数)
本题答案:
问题1:
(1)φ20mm钢管暗配工程量计算式:
3×3×5+2+[3+(5-4)]+2+3+2+[1.5+(5-1.5-0.3)]+[4+(5-1.5-0.3)]=69.90(m)
φ25mm钢管暗配工程量计算式:
(5-1.3)+1.5+(5-1.3)+8+2+2+2+(5-1.3)+1.5+3×3+(4-1.3)+2=41.80(m)
(2)BV-5002.5mm2绝缘导线穿管工程量计算式:
预留长度:500+300=800(mm)=0.8(m)
三线:69.9×3+0.8×3×2=214.5(m)
四线:[2+(5-1.3)+1.5+3×3+(4-1.3)+2]×4=83.6(m)
五线:[(5-1.3)+1.5+(5-1.3)+8+2+2]×5=104.5(m)
总长度:214.5+83.6+104.5=402.6(m)

问题2:

问题1:
(1)φ20mm钢管暗配工程量计算式:
3×3×5+2+[3+(5-4)]+2+3+2+[1.5+(5-1.5-0.3)]+[4+(5-1.5-0.3)]=69.90(m)
φ25mm钢管暗配工程量计算式:
(5-1.3)+1.5+(5-1.3)+8+2+2+2+(5-1.3)+1.5+3×3+(4-1.3)+2=41.80(m)
(2)BV-5002.5mm2绝缘导线穿管工程量计算式:
预留长度:500+300=800(mm)=0.8(m)
三线:69.9×3+0.8×3×2=214.5(m)
四线:[2+(5-1.3)+1.5+3×3+(4-1.3)+2]×4=83.6(m)
五线:[(5-1.3)+1.5+(5-1.3)+8+2+2]×5=104.5(m)
总长度:214.5+83.6+104.5=402.6(m)

问题2:
