2021年一级造价工程师《案例分析(土建)》真题
搜题
1、某企业拟投资建设一个生产市场急需产品的工业项目。该项目建设2年,运营期8年。项目建设的其他基本数据如下:
1.项目建设投资估算5300万元(包含可抵扣进项税300万元),预计全部形成固定资产,固定资产使用年限8年。按直线法折旧,期末净残值率为5%。
2.建设投资资金来源于自有资金和银行借款,借款年利率6%(按年计息)。借款合同约定还款方式为在运营期的前5年等额还本付息。建设期内自有资金和借款均为均衡投入。
3.项目所需流动资金按照分项详细估算法估算,从运营期第1年开始由自有资金投入。
4.项目运营期第1年,外购原材料、燃料费为1680万元,工资及福利费为700万元,其他费用为290万元,存货估算为385万元。项目应收账款年周转次数、现金年周转次数、应付账款年周转次数分别为12次、9次、6次。项目无预付账款和预收账款情况。
5.项目产品适用的增值税税率为13%,增值税附加税率为12%,企业所得税税率为25%。
6.项目的资金投入、收益、成本费用表1.1。
表1.1项目资金投入、收益、成本费用表单位:万元

问题:
1.列式计算项目运营期年固定资产折旧额。
2.列式计算项目运营期第1年应偿还的本金、利息。
3.列式计算项目运营期第1年、第2年应投入的流动资金。
4.列式计算项目运营期第1年应缴纳的增值税。
5.以不含税价格列式计算项目运营期第1年的总成本费用和税后利润,并通过计算说明项目运营期第1年能够满足还款要求。
(计算过程和结果保留两位小数)
1.项目建设投资估算5300万元(包含可抵扣进项税300万元),预计全部形成固定资产,固定资产使用年限8年。按直线法折旧,期末净残值率为5%。
2.建设投资资金来源于自有资金和银行借款,借款年利率6%(按年计息)。借款合同约定还款方式为在运营期的前5年等额还本付息。建设期内自有资金和借款均为均衡投入。
3.项目所需流动资金按照分项详细估算法估算,从运营期第1年开始由自有资金投入。
4.项目运营期第1年,外购原材料、燃料费为1680万元,工资及福利费为700万元,其他费用为290万元,存货估算为385万元。项目应收账款年周转次数、现金年周转次数、应付账款年周转次数分别为12次、9次、6次。项目无预付账款和预收账款情况。
5.项目产品适用的增值税税率为13%,增值税附加税率为12%,企业所得税税率为25%。
6.项目的资金投入、收益、成本费用表1.1。
表1.1项目资金投入、收益、成本费用表单位:万元

问题:
1.列式计算项目运营期年固定资产折旧额。
2.列式计算项目运营期第1年应偿还的本金、利息。
3.列式计算项目运营期第1年、第2年应投入的流动资金。
4.列式计算项目运营期第1年应缴纳的增值税。
5.以不含税价格列式计算项目运营期第1年的总成本费用和税后利润,并通过计算说明项目运营期第1年能够满足还款要求。
(计算过程和结果保留两位小数)
本题答案:
问题1:(4分)
建设期利息:第1年:1500×1/2×6%=45万元
第2年:(1545+1500×1/2)×6%=137.7万元
合计:45+137.7=182.7万元(2分)
固定资产折旧费:(5300+182.7-300)×(1-5%)÷8=615.45万元(2分)
问题2:(4分)
每年得还本息和:
3182.7×6%×(1+6%)5÷[(1+6%)5-1]=755.56万元(2分)
运营期第1年应还利总:3182.7×6%=190.96万元(1分)
应还本金:755.56-190.96=564.6万元(2分)
问题3:(5分)
运营期第1年应投入的流动资金:
应收账款=年经营成本÷12=2700÷12=225万元
现金=(工资及福利费+其他费用)÷9=(700+290)÷9=110万元
存货=385万元
流动资产=225+110+385=720万元(2分)
应付账款=外购原材料、燃料费÷6=1680÷6=280万元
流动负债=应付账款=280万元(1分)
运营期第1年应投入的流动资金=720-280=440万元(1分)
运营期第2年应投入的流动资金=855-350-440=65万元(1分)
问题4:(2分)
运营期第1年增值税:3520×13%-200-300=-42.4万元,故应纳增值税为0(2分)
问题5:(5分)
运营期第1年:
总成本费用=2700+615.45+190.96=3506.41万元(2分)
税后利润=(3520-3506.41)×(1-25%)=10.19万元(1分)
因10.19+615.45=625.64万元>当年应还本金564.6万元,故运营期第1年可以满足还款要求。(2分)
问题1:(4分)
建设期利息:第1年:1500×1/2×6%=45万元
第2年:(1545+1500×1/2)×6%=137.7万元
合计:45+137.7=182.7万元(2分)
固定资产折旧费:(5300+182.7-300)×(1-5%)÷8=615.45万元(2分)
问题2:(4分)
每年得还本息和:
3182.7×6%×(1+6%)5÷[(1+6%)5-1]=755.56万元(2分)
运营期第1年应还利总:3182.7×6%=190.96万元(1分)
应还本金:755.56-190.96=564.6万元(2分)
问题3:(5分)
运营期第1年应投入的流动资金:
应收账款=年经营成本÷12=2700÷12=225万元
现金=(工资及福利费+其他费用)÷9=(700+290)÷9=110万元
存货=385万元
流动资产=225+110+385=720万元(2分)
应付账款=外购原材料、燃料费÷6=1680÷6=280万元
流动负债=应付账款=280万元(1分)
运营期第1年应投入的流动资金=720-280=440万元(1分)
运营期第2年应投入的流动资金=855-350-440=65万元(1分)
问题4:(2分)
运营期第1年增值税:3520×13%-200-300=-42.4万元,故应纳增值税为0(2分)
问题5:(5分)
运营期第1年:
总成本费用=2700+615.45+190.96=3506.41万元(2分)
税后利润=(3520-3506.41)×(1-25%)=10.19万元(1分)
因10.19+615.45=625.64万元>当年应还本金564.6万元,故运营期第1年可以满足还款要求。(2分)
2、某利用原有仓储库房改建养老院项目,有三个可选设计方案。方案1:不改变原建筑结构和外立面装修,内部格局和装修做部分调整;方案二:部分改变原建筑结构,外立面装修全部拆除重做,内部格局和装修做较大调整;方案三:整体拆除新建。三个方案的基础数据见表2.1.假设初始投资发生在期初,维护费用和残值发生在期末。
表2.1各设计方案的基础数据

经建设单位组织的专家组评审,决定从施工工期(Z1)、初始投资(Z2)、维护费用(Z3)、空间利用(Z4)、使用年限(Z5)、建筑能耗(Z6)六个指标对设计方案进行评价。专家组采用0~1评分方法对各指标的重要程度进行评分,评分结果见表2.2,专家组对各设计方案的评价指标打分的算术平均值见表2.3。
表2.2指标重要程度评分表

表2.3各设计方案评价指标打分算术平均值

问题:
1.利用答题卡表2.1,计算各评价指标的权重。

2.按Z1到Z6组成的评价指标体系,采用综合评审法对三个方案进行评价,并推荐最优方案。
3.为了进一步对三个方案进行比较,专家组采用结构耐久度、空间利用、建筑能耗,建筑外观四个指标作为功能项目,经综合评价确定的三个方案的功能指数分别为方案一0.241,方案二0.351,方案三0.408。在考虑初始投资、维护费用和残值的前提下,已知方案一和方案二的寿命期年费用分别为256.415万元和280.789万元,试计算方案三的寿命期年费用,并用价值工程方法选择最优方案。年复利率为8%,现值系数见表2.4。
4.在选定方案二的前提下,设计单位提出,通过增设护理监测系统降低维护费用,该系统又有A、B两个设计方案。方案A初始投资60万元,每年降低维护费用8万元,每10年大修一次,每次大修费用20万元;方案B初始投资100万元,每年降低维护费用11万元,每20年大修一次,每次大修费用50万元,试分别计算A、B两个方案的净现值,并选择最优方案。
(计算过程和结果均保留三位小数)
表2.4现值系数表

表2.1各设计方案的基础数据

经建设单位组织的专家组评审,决定从施工工期(Z1)、初始投资(Z2)、维护费用(Z3)、空间利用(Z4)、使用年限(Z5)、建筑能耗(Z6)六个指标对设计方案进行评价。专家组采用0~1评分方法对各指标的重要程度进行评分,评分结果见表2.2,专家组对各设计方案的评价指标打分的算术平均值见表2.3。
表2.2指标重要程度评分表

表2.3各设计方案评价指标打分算术平均值

问题:
1.利用答题卡表2.1,计算各评价指标的权重。

2.按Z1到Z6组成的评价指标体系,采用综合评审法对三个方案进行评价,并推荐最优方案。
3.为了进一步对三个方案进行比较,专家组采用结构耐久度、空间利用、建筑能耗,建筑外观四个指标作为功能项目,经综合评价确定的三个方案的功能指数分别为方案一0.241,方案二0.351,方案三0.408。在考虑初始投资、维护费用和残值的前提下,已知方案一和方案二的寿命期年费用分别为256.415万元和280.789万元,试计算方案三的寿命期年费用,并用价值工程方法选择最优方案。年复利率为8%,现值系数见表2.4。
4.在选定方案二的前提下,设计单位提出,通过增设护理监测系统降低维护费用,该系统又有A、B两个设计方案。方案A初始投资60万元,每年降低维护费用8万元,每10年大修一次,每次大修费用20万元;方案B初始投资100万元,每年降低维护费用11万元,每20年大修一次,每次大修费用50万元,试分别计算A、B两个方案的净现值,并选择最优方案。
(计算过程和结果均保留三位小数)
表2.4现值系数表

本题答案:
问题1(4分)

问题2:(4分)
方案一得分:10×0.19+10×0.286+8×0.238+6×0.095+6×0.143+7×0.048=8.428(1分)
方案二得分:8×0.19+7×0.286+9×0.238+9×0.095+8×0.143+9×0.048=8.095(1分)
方案三得分:7×0.19+6×0.286+10×0.238+10×0.095+10×0.143+10×0.048=8.286(1分)
因方案一得分最高,故推荐方案一为最优方案。(1分)
问题3:(6分)
方案三寿命周期年费用:
2100×(A/P,8%,50)+120-70×(P/F,8%,50)×(A/P,8%,50)=2100÷12.233+120-70×0.021÷12.233=291.547万元(1分)
成本指数:(2分)
256.415+280.789+291.547=828.751万元
方案一:256.415/828.751=0.309
方案二:280.789/828.751=0.339
方案三:291.547/828.751=0.352
价值指数:(2分)
方案一:0.241/0.309=0.780
方案二:0.351/0.339=1.035
方案三:0.408/0.352=1.159
因方案三价值指数最高,故选择方案三为最优方案。(1分)
问题4:(6分)
A方案费用净现值:1800+60-40×(P/F,8%,40)+(130-8)×(P/A,8%,40)+20×[(P/F,8%,10)+(P/F,8%,20)+(P/F,8%,30)]
=1800+60-40×0.046+122×11.925+20×(0.463+0.215+0.099)=3328.55万元(2.5分)
B方案费用净现值:1800+100-40×(P/F,8%,40)+(130-11)×(P/A,8%,40)+50×(P/F,8%,20)
=1800+100-40×0.046+119×11.925+50×0.215=3327.985万元
因B方案费用净现值最小,故选择B方案为最优方案。(1分)
问题1(4分)

问题2:(4分)
方案一得分:10×0.19+10×0.286+8×0.238+6×0.095+6×0.143+7×0.048=8.428(1分)
方案二得分:8×0.19+7×0.286+9×0.238+9×0.095+8×0.143+9×0.048=8.095(1分)
方案三得分:7×0.19+6×0.286+10×0.238+10×0.095+10×0.143+10×0.048=8.286(1分)
因方案一得分最高,故推荐方案一为最优方案。(1分)
问题3:(6分)
方案三寿命周期年费用:
2100×(A/P,8%,50)+120-70×(P/F,8%,50)×(A/P,8%,50)=2100÷12.233+120-70×0.021÷12.233=291.547万元(1分)
成本指数:(2分)
256.415+280.789+291.547=828.751万元
方案一:256.415/828.751=0.309
方案二:280.789/828.751=0.339
方案三:291.547/828.751=0.352
价值指数:(2分)
方案一:0.241/0.309=0.780
方案二:0.351/0.339=1.035
方案三:0.408/0.352=1.159
因方案三价值指数最高,故选择方案三为最优方案。(1分)
问题4:(6分)
A方案费用净现值:1800+60-40×(P/F,8%,40)+(130-8)×(P/A,8%,40)+20×[(P/F,8%,10)+(P/F,8%,20)+(P/F,8%,30)]
=1800+60-40×0.046+122×11.925+20×(0.463+0.215+0.099)=3328.55万元(2.5分)
B方案费用净现值:1800+100-40×(P/F,8%,40)+(130-11)×(P/A,8%,40)+50×(P/F,8%,20)
=1800+100-40×0.046+119×11.925+50×0.215=3327.985万元
因B方案费用净现值最小,故选择B方案为最优方案。(1分)
3、某国有资金投资项目,业主依据《标准施工招标文件》通过招标确定了施工总承包单位,双方签订了施工总承包合同,合同约定,管理费按人材机费之和的10%计取,利润按人材机费和管理费之和的6%计取,规费和增值税按人材机费、管理费和利润之和的13%计取,人工费单价为150元/工日,施工机械台班单价为1500元/台班,新增分部分项工程的措施费按该分部分项工程费的30%计取。(除特殊说明外,各费用计算均按不含增值税价格考虑。合同工期220天,工期提前(延误)的奖励(惩罚)金额为1万元/日。
合同签订后,总承包单位编制并被批准的施工进度计划如图3.1所示

图3.1施工进度计划(单位:天)
施工过程中发生如下事件:
事件1:为改善项目使用功能,业主进行了设计变更,该变更增加了一项Z工作,根据施工工艺要求,Z工作为A工作的紧后工作、为G工作的紧前工作,已知Z工作持续时间为50天,用人工600工日,施工机械50台班,材料费16万元。
事件2:E工作为隐蔽工程。E工作施工前,总承包单位认为工期紧张,监理工程师到场验收会延误时间,即自行进行了隐蔽,监理工程师得知后,要求总承包单位对已经覆盖的隐蔽工程剥露重新验收。经检查验收,该隐蔽工程合格。总承包单位以该工程检查验收合格为由,提出剥露与修复隐蔽工程的人工费、材料费合计1.5万元和延长工期5天的索赔。
事件3:为获取提前竣工奖励,总承包单位确定了五项可压缩工作持续时间的工作F、G、H、I、J,并测算了相应增加的费用,见表3.1。
表3.1可压缩的工作持续时间和相应的费用增加表

已知施工总承包合同中的某分包专业工程暂估价1000万元,具有技术复杂、专业性强的工程特点,由总承包单位负责招标。招标过程中发生如下事件:
①由于采用随机抽取方式确定的评标专家难以保证胜任该分包专业工程评标工作,总承包单位便直接确定了评标专家。
②对投标人进行资格审查时,评标委员会认为,招标文件中规定投标人必须提供合同复印件作为施工业绩认定的证明材料,不足以反映工程合同履行的实际情况,还应提供工程竣工验收单。所以对投标文件中,提供了施工业绩的合同复印件和工程竣工验收单的投标人通过资格审查,对施工业绩仅提供了合同复印件的投标人做出不予通过资格审查的处理决定。
③评标结束后,总承包单位征得业主同意,拟向排第一序位的中标候选人发出中标通知书前,了解到该中标候选人的经营状况恶化,且被列入了失信被执行人。
问题:
1.事件1中,依据图3.1绘制增加Z工作以后的施工进度计划;列式计算Z工作的工程价款(单位:元)
2.事件2中,总承包单位的费用和工期索赔是否成立?说明理由。在索赔成立的情况下,总承包单位可索赔的费用金额为多少元?
3.事件3中,从经济性角度考虑,总承包单位应压缩多少天的工期?应压缩哪几项工作?可以获得的收益是多少元?
4.总承包单位直接确定评标专家的做法是否正确?说明理由。
5.评标委员会对投标人施工业绩认定的做法是否正确?说明理由。
6.针对分包专业工程招标过程中的事件③,总承包单位应如何处理?
(费用计算结果保留两位小数)
合同签订后,总承包单位编制并被批准的施工进度计划如图3.1所示

图3.1施工进度计划(单位:天)
施工过程中发生如下事件:
事件1:为改善项目使用功能,业主进行了设计变更,该变更增加了一项Z工作,根据施工工艺要求,Z工作为A工作的紧后工作、为G工作的紧前工作,已知Z工作持续时间为50天,用人工600工日,施工机械50台班,材料费16万元。
事件2:E工作为隐蔽工程。E工作施工前,总承包单位认为工期紧张,监理工程师到场验收会延误时间,即自行进行了隐蔽,监理工程师得知后,要求总承包单位对已经覆盖的隐蔽工程剥露重新验收。经检查验收,该隐蔽工程合格。总承包单位以该工程检查验收合格为由,提出剥露与修复隐蔽工程的人工费、材料费合计1.5万元和延长工期5天的索赔。
事件3:为获取提前竣工奖励,总承包单位确定了五项可压缩工作持续时间的工作F、G、H、I、J,并测算了相应增加的费用,见表3.1。
表3.1可压缩的工作持续时间和相应的费用增加表

已知施工总承包合同中的某分包专业工程暂估价1000万元,具有技术复杂、专业性强的工程特点,由总承包单位负责招标。招标过程中发生如下事件:
①由于采用随机抽取方式确定的评标专家难以保证胜任该分包专业工程评标工作,总承包单位便直接确定了评标专家。
②对投标人进行资格审查时,评标委员会认为,招标文件中规定投标人必须提供合同复印件作为施工业绩认定的证明材料,不足以反映工程合同履行的实际情况,还应提供工程竣工验收单。所以对投标文件中,提供了施工业绩的合同复印件和工程竣工验收单的投标人通过资格审查,对施工业绩仅提供了合同复印件的投标人做出不予通过资格审查的处理决定。
③评标结束后,总承包单位征得业主同意,拟向排第一序位的中标候选人发出中标通知书前,了解到该中标候选人的经营状况恶化,且被列入了失信被执行人。
问题:
1.事件1中,依据图3.1绘制增加Z工作以后的施工进度计划;列式计算Z工作的工程价款(单位:元)
2.事件2中,总承包单位的费用和工期索赔是否成立?说明理由。在索赔成立的情况下,总承包单位可索赔的费用金额为多少元?
3.事件3中,从经济性角度考虑,总承包单位应压缩多少天的工期?应压缩哪几项工作?可以获得的收益是多少元?
4.总承包单位直接确定评标专家的做法是否正确?说明理由。
5.评标委员会对投标人施工业绩认定的做法是否正确?说明理由。
6.针对分包专业工程招标过程中的事件③,总承包单位应如何处理?
(费用计算结果保留两位小数)
本题答案:
问题1:

施工进度计划
Z工程款:(600×150+50×1500+160000)×1.1×1.06×1.3×1.13=556677.55元(2分)
问题2:(4分)
事件2:不可以提出工期和费用索赔。(2分)
承包人未通知监理人到场检查,私自将工程隐蔽部位覆盖的,监理人有权指示承包人钻孔探测或揭开检查,无论工程隐蔽部位是否合格,由此增加的费用和延误的工期均由承包人承担。(1分)
费用索赔的0元(1分)
问题3:(4分)
从经济的角度,总承包商应压缩10天工期。(1分)
压缩F和G工作各10天(1分)
费用增加(2000×10+5000×10=70000元
可获得的收益为:(220-210)×10000-70000=30000元(2分)
问题4:(2.5分)
总承包商直接确定评标专家的做法正确。(0.5分)
理由:评标专家可以采取随机抽取或者直接确定的方式。一般项目,可以采取随机抽取的方式;技术特别复杂、专业性要求特别高或者国家有特殊要求的招标项目,采取随机抽取方式确定的专家难以胜任的,可以由招标人直接确定。(2分)
问题5:(2.5分)
评标委员会对施工业绩认定的做法错误。(0.5分)
理由:评标委员会应按照招标文件要求的资格审查方式审查投标人资格,若需投标人给予额外资料补充说明的,应书面通知投标人补充。(2分)
问题6:(2分)
总承包人可以重新招标或选择中标候选人名单排名第二的中标候选人为中标人。国有资金占控股或者主导地位的依法必须进行招标的项目,招标人应当确定排名第一的中标候选人为中标人。排名第一的中标候选人的经营、财务状况发生较大变化或者在在违法行为等情形,不符合中标条件的,招标人可以按照评标委员会提出的中标候选人名单排序依次确定其他中标候选人为中标人,也可以重新招标。(2分)
问题1:

施工进度计划
Z工程款:(600×150+50×1500+160000)×1.1×1.06×1.3×1.13=556677.55元(2分)
问题2:(4分)
事件2:不可以提出工期和费用索赔。(2分)
承包人未通知监理人到场检查,私自将工程隐蔽部位覆盖的,监理人有权指示承包人钻孔探测或揭开检查,无论工程隐蔽部位是否合格,由此增加的费用和延误的工期均由承包人承担。(1分)
费用索赔的0元(1分)
问题3:(4分)
从经济的角度,总承包商应压缩10天工期。(1分)
压缩F和G工作各10天(1分)
费用增加(2000×10+5000×10=70000元
可获得的收益为:(220-210)×10000-70000=30000元(2分)
问题4:(2.5分)
总承包商直接确定评标专家的做法正确。(0.5分)
理由:评标专家可以采取随机抽取或者直接确定的方式。一般项目,可以采取随机抽取的方式;技术特别复杂、专业性要求特别高或者国家有特殊要求的招标项目,采取随机抽取方式确定的专家难以胜任的,可以由招标人直接确定。(2分)
问题5:(2.5分)
评标委员会对施工业绩认定的做法错误。(0.5分)
理由:评标委员会应按照招标文件要求的资格审查方式审查投标人资格,若需投标人给予额外资料补充说明的,应书面通知投标人补充。(2分)
问题6:(2分)
总承包人可以重新招标或选择中标候选人名单排名第二的中标候选人为中标人。国有资金占控股或者主导地位的依法必须进行招标的项目,招标人应当确定排名第一的中标候选人为中标人。排名第一的中标候选人的经营、财务状况发生较大变化或者在在违法行为等情形,不符合中标条件的,招标人可以按照评标委员会提出的中标候选人名单排序依次确定其他中标候选人为中标人,也可以重新招标。(2分)
4、某施工项目发承包双方签订了工程合同,工期6个月。有关工程内容及其价款约定如下:
1.分项工程(含单价措施,下同)项目4项,有关数据如表4.1所示。
2.总价措施项目费用为分项工程项目费用的15%,其中,安全文明施工费为6%。
3.其他项目费用包括,暂列金额18万元,分包专业工程暂估价20万元(另计总承包服务费5%),管理费和利润为不含人材机费用之和的12%,规费为工程费用的7%,增值税税率为9%。
表4.1分项工程项目相关数据与计划进度表

有关工程价款调整与支付条款约定如下:
1.开工日期10日前,发包人按分项工程项目签约合同价的20%支付给承包人作为工程预付款,在施工期间2~5个月的每月工程款中等额扣回。
2.安全文明施工费工程款分2次支付,在开工前支付签约合同价的70%,其余部分在施工期间第3个月支付。
3.除安全文明施工费之外的总价措施项目工程款,按签约合同价在施工期间第1~5个月分5次平均支付。
4.竣工结算时,根据分项工程项目费用变化值一次性调整总价措施项目费用。
5.分项工程项目工程款按施工期间实际完成工程量逐月支付,当分项工程项目累计完成工程量增加(或减少)超过计划总工程量15%以上时,管理费和利润降低(或提高)50%。
6.其他项目工程款在发生当月支付。
7.开工前和施工期间,发包人按承包人每次应得工程款的90%支付。
8.发包人在承包人提交竣工结算报告后20天内完成审查工作,并在承包人提供所在开户行出具的工程质量保函(额度为工程竣工结算总造价的3%)后,一次性结清竣工结算款。
该工程如期开工,施工期间发生了经发承包双方确认的下列事项:
1.因设计变更,分项工程B的工程量增加300m3,第2、3、4个月每月实际完成工程量均比计划完成工程量增加100m3。
2.因招标工程量清单的项目特征描述与工程设计文件不符,分项工程C的综合单价调整为330元/m2。
3.分包专业工程在第3、4个月平均完成,工程费用不变。其他工程内容的施工时间和费用均与原合同约定相符。
问题:
1.该施工项目签约合同价中的总价措施项目费用、安全文明施工费分别为多少万元?签约合同价为多少万元?开工前发包人应支付给承包人的工程预付款和安全文明施工费工程款分别为多少万元?
2.截止到第2个月末,分项工程项目的拟完工程计划投资、已完工程计划投资,已完工程实际投资分别为多少万元(不考虑总价措施项目费用的影响)?投资偏差和进度偏差分别为多少万元?
3.第3个月,承包人完成分项工程项目费用为多少万元?该月发包人应支付给承包人的工程款为多少方元?
4.分项工程B按调整后的综合单价计算费用的工程量为多少m3?调整后的综合单价为多少元/m3?分项工程项目费用、总价措施项目费用分别增加多少万元?竣工结算时,发包人应支付给承包人的竣工结算款为多少万元?
(计算过程和结果以万元为单位的保留三位小数,以元为单位的保留两位小数)
1.分项工程(含单价措施,下同)项目4项,有关数据如表4.1所示。
2.总价措施项目费用为分项工程项目费用的15%,其中,安全文明施工费为6%。
3.其他项目费用包括,暂列金额18万元,分包专业工程暂估价20万元(另计总承包服务费5%),管理费和利润为不含人材机费用之和的12%,规费为工程费用的7%,增值税税率为9%。
表4.1分项工程项目相关数据与计划进度表

有关工程价款调整与支付条款约定如下:
1.开工日期10日前,发包人按分项工程项目签约合同价的20%支付给承包人作为工程预付款,在施工期间2~5个月的每月工程款中等额扣回。
2.安全文明施工费工程款分2次支付,在开工前支付签约合同价的70%,其余部分在施工期间第3个月支付。
3.除安全文明施工费之外的总价措施项目工程款,按签约合同价在施工期间第1~5个月分5次平均支付。
4.竣工结算时,根据分项工程项目费用变化值一次性调整总价措施项目费用。
5.分项工程项目工程款按施工期间实际完成工程量逐月支付,当分项工程项目累计完成工程量增加(或减少)超过计划总工程量15%以上时,管理费和利润降低(或提高)50%。
6.其他项目工程款在发生当月支付。
7.开工前和施工期间,发包人按承包人每次应得工程款的90%支付。
8.发包人在承包人提交竣工结算报告后20天内完成审查工作,并在承包人提供所在开户行出具的工程质量保函(额度为工程竣工结算总造价的3%)后,一次性结清竣工结算款。
该工程如期开工,施工期间发生了经发承包双方确认的下列事项:
1.因设计变更,分项工程B的工程量增加300m3,第2、3、4个月每月实际完成工程量均比计划完成工程量增加100m3。
2.因招标工程量清单的项目特征描述与工程设计文件不符,分项工程C的综合单价调整为330元/m2。
3.分包专业工程在第3、4个月平均完成,工程费用不变。其他工程内容的施工时间和费用均与原合同约定相符。
问题:
1.该施工项目签约合同价中的总价措施项目费用、安全文明施工费分别为多少万元?签约合同价为多少万元?开工前发包人应支付给承包人的工程预付款和安全文明施工费工程款分别为多少万元?
2.截止到第2个月末,分项工程项目的拟完工程计划投资、已完工程计划投资,已完工程实际投资分别为多少万元(不考虑总价措施项目费用的影响)?投资偏差和进度偏差分别为多少万元?
3.第3个月,承包人完成分项工程项目费用为多少万元?该月发包人应支付给承包人的工程款为多少方元?
4.分项工程B按调整后的综合单价计算费用的工程量为多少m3?调整后的综合单价为多少元/m3?分项工程项目费用、总价措施项目费用分别增加多少万元?竣工结算时,发包人应支付给承包人的竣工结算款为多少万元?
(计算过程和结果以万元为单位的保留三位小数,以元为单位的保留两位小数)
本题答案:
问题1:(5分)
总价措施项目费用=163×15%=24.45万元(1分)
安全文明施工费=163×6%=9.78万元(1分)
签约合同价=(163+24.45+18+20×1.05)×1.07×1.09=264.109万元(1分)
工程预付款=163×1.07×1.09×20%=38.021万元(1分)
开工前应支付安全文明施工费=9.78×1.07×1.09×70%×90%=7.186万元(1分)
问题2(5分)
截止第2个月末:
拟完工程计划投资=(12+45.4)×1.07×1.09=66.946万元(1分)
已完工程计划投资=(27+500×480/10000+350×320/10000)×1.07×1.09=72.544万元(1分)
已完工程实际投资= (27+500×480/10000+350×330/10000)×1.07×1.09=72.952万元(1分)
投资偏差=72.544-72.952=-0.408万元,即,投资超支0.408万元;(1分)
进度偏差=72.544-66.946=5.598万元,即,进度超前5.598万元,(1分)
问题3:(4分)
第3个月:
承包商完成分项工程项目费用=(500×480+350×330+200×280)/10000=41.15万元(1分)
发包人应付工程款=[41.15+(24.45-9.78)/5+9.78×30%+20×1.05/2]×1.07×1.09×90%-38.021/4=50.870万元(3分)
问题4:(6分)
(1)分项工程B按调整后综合单价计算费用的工程量为:1500-1200×1.15=120m3(1分)
原人材机:480/1.12=428.57元/m3(1分)
调整后管利:428.57×12%×(1-50%)=25.71元/m3
(2)调整后综合单价:428.57+25.71=454.28元/m3(1分)
(3)B分项工程费用增加:[(300-120)×480+120×454.28]/10000=14.091万元
C分项工程费用增加:1400×(330-320)/10000=1.4万元
分项工程费用增加:14.091+1.4=15.491万元(1分)
总价措施费用增加:15.491×15%=2.324万元(1分)
(1)实际总造价:264.109+(15.491+2.324-18)×1.07×1.09=263.893万元(1分)
竣工结算款:263.893-(263.893-2.324×1.07×1.09)×90%=28.829万元(1分)
问题1:(5分)
总价措施项目费用=163×15%=24.45万元(1分)
安全文明施工费=163×6%=9.78万元(1分)
签约合同价=(163+24.45+18+20×1.05)×1.07×1.09=264.109万元(1分)
工程预付款=163×1.07×1.09×20%=38.021万元(1分)
开工前应支付安全文明施工费=9.78×1.07×1.09×70%×90%=7.186万元(1分)
问题2(5分)
截止第2个月末:
拟完工程计划投资=(12+45.4)×1.07×1.09=66.946万元(1分)
已完工程计划投资=(27+500×480/10000+350×320/10000)×1.07×1.09=72.544万元(1分)
已完工程实际投资= (27+500×480/10000+350×330/10000)×1.07×1.09=72.952万元(1分)
投资偏差=72.544-72.952=-0.408万元,即,投资超支0.408万元;(1分)
进度偏差=72.544-66.946=5.598万元,即,进度超前5.598万元,(1分)
问题3:(4分)
第3个月:
承包商完成分项工程项目费用=(500×480+350×330+200×280)/10000=41.15万元(1分)
发包人应付工程款=[41.15+(24.45-9.78)/5+9.78×30%+20×1.05/2]×1.07×1.09×90%-38.021/4=50.870万元(3分)
问题4:(6分)
(1)分项工程B按调整后综合单价计算费用的工程量为:1500-1200×1.15=120m3(1分)
原人材机:480/1.12=428.57元/m3(1分)
调整后管利:428.57×12%×(1-50%)=25.71元/m3
(2)调整后综合单价:428.57+25.71=454.28元/m3(1分)
(3)B分项工程费用增加:[(300-120)×480+120×454.28]/10000=14.091万元
C分项工程费用增加:1400×(330-320)/10000=1.4万元
分项工程费用增加:14.091+1.4=15.491万元(1分)
总价措施费用增加:15.491×15%=2.324万元(1分)
(1)实际总造价:264.109+(15.491+2.324-18)×1.07×1.09=263.893万元(1分)
竣工结算款:263.893-(263.893-2.324×1.07×1.09)×90%=28.829万元(1分)
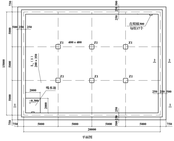
5、某企业已建成1500m3生活用高位水池,开始办理工程竣工结算事宜。承建该工程的施工企业根据施工招标工程量清单中标的“高位水池土建分部分项工程和单价措施项目清单与计价表”(如表5.1所示),该工程的竣工图及相关参数(如图5.1和图5.2所示)编制工程结算。

问题:
1.根据竣工图5.1和图5.2中所示内容及相关数据,按《构筑物工程工程量计算规范》(GB50860-2013)的计算规则,请在答题卡表5.1中,列式计算该高位水池的混凝土垫层、钢筋混凝土池底板、钢筋混凝土池壁板、钢筋混凝土池顶板、钢筋混凝土池内柱、钢筋、钢爬梯等实体工程分部分项结算工程量。(注:池壁计算高度为池底板上表面至池顶板下表面;池顶板为肋形板、主、次梁计入池顶板体积内;池内标的计算高度为池底板上表面至池顶板下表面。钢筋工程量计算按:池底板66.50kg/m3),池壁板89.65kg/m3,池顶板及主、次梁123.80kg/m3,池内柱148.20kg/m3,钢爬梯φ20钢筋按2.47kg/m计算)
2.原招标工程量清单中钢筋混凝土池顶板混凝土标号为C30,施工过程中经各方确认设计变更为C35,若该清单项目混凝土消耗量为1.015;同期C30及C35商品混凝土到工地价分别为488.00元/m3和530.00元/m3;原投标价中企业管理费按人工、材料、机械费之和的10%记取,利润按人工、材料、机械、企业管理费之和的7%计取。请在答题卡中列式计算该钢筋混凝土池顶板混凝土标号由C30变更为C35的综合单价差和综合单价。
3.该工程施工合同双方约定,工程竣工结算时,土石方工程量和单价措施费不做调整。请根据问题1和问题2的计算结果、表5.1中已有的数据、答题卡表中相关的信息,按《构筑物工程工程量计算规范》(GB50860-2013)及《建设工程工程量清单计价规范》(GB50500-2013)的计算规则,在答题卡表5.2中,编制该高位水池土建分部分项工程和单价措施项目清单与计价表。
4.若总价措施项目中仅有安全文明施工费,其费率按分部分项工程费的6%计取;其他项目费用的防水工程专业分包结算价为85000.00元,总包服务费按5%计取;人工费占分部分项工程费及措施项目费的25%,规费按人工费的21%计取,税金按9%计取。
请根据问题3的计算结果,按《建设工程工程量清单计价规范》(GB50500-2013)的计算规则,在答题卡中列式计算安全文明施工费、措施项目费、人工费,在答题卡表5.3中,编制该高位水池土建单位工程竣工结算汇总表。





问题:
1.根据竣工图5.1和图5.2中所示内容及相关数据,按《构筑物工程工程量计算规范》(GB50860-2013)的计算规则,请在答题卡表5.1中,列式计算该高位水池的混凝土垫层、钢筋混凝土池底板、钢筋混凝土池壁板、钢筋混凝土池顶板、钢筋混凝土池内柱、钢筋、钢爬梯等实体工程分部分项结算工程量。(注:池壁计算高度为池底板上表面至池顶板下表面;池顶板为肋形板、主、次梁计入池顶板体积内;池内标的计算高度为池底板上表面至池顶板下表面。钢筋工程量计算按:池底板66.50kg/m3),池壁板89.65kg/m3,池顶板及主、次梁123.80kg/m3,池内柱148.20kg/m3,钢爬梯φ20钢筋按2.47kg/m计算)
2.原招标工程量清单中钢筋混凝土池顶板混凝土标号为C30,施工过程中经各方确认设计变更为C35,若该清单项目混凝土消耗量为1.015;同期C30及C35商品混凝土到工地价分别为488.00元/m3和530.00元/m3;原投标价中企业管理费按人工、材料、机械费之和的10%记取,利润按人工、材料、机械、企业管理费之和的7%计取。请在答题卡中列式计算该钢筋混凝土池顶板混凝土标号由C30变更为C35的综合单价差和综合单价。
3.该工程施工合同双方约定,工程竣工结算时,土石方工程量和单价措施费不做调整。请根据问题1和问题2的计算结果、表5.1中已有的数据、答题卡表中相关的信息,按《构筑物工程工程量计算规范》(GB50860-2013)及《建设工程工程量清单计价规范》(GB50500-2013)的计算规则,在答题卡表5.2中,编制该高位水池土建分部分项工程和单价措施项目清单与计价表。
4.若总价措施项目中仅有安全文明施工费,其费率按分部分项工程费的6%计取;其他项目费用的防水工程专业分包结算价为85000.00元,总包服务费按5%计取;人工费占分部分项工程费及措施项目费的25%,规费按人工费的21%计取,税金按9%计取。
请根据问题3的计算结果,按《建设工程工程量清单计价规范》(GB50500-2013)的计算规则,在答题卡中列式计算安全文明施工费、措施项目费、人工费,在答题卡表5.3中,编制该高位水池土建单位工程竣工结算汇总表。




本题答案:
问题1:

问题2:
综合单价差:(530-488)×1.1×1.07×1.015=50.18元/m3(1.5分)
综合单价:719.69+49.43×1.015=769.87元/m3(1.5分)
问题3:

问题4:
安全文明施工费:803758834×6%=48225.54元
措施项目费:48225.54+131800.00=180025.54元
人工费:(80375754+180025.54)×25%=245946.12元
问题1:

问题2:
综合单价差:(530-488)×1.1×1.07×1.015=50.18元/m3(1.5分)
综合单价:719.69+49.43×1.015=769.87元/m3(1.5分)
问题3:

问题4:
安全文明施工费:803758834×6%=48225.54元
措施项目费:48225.54+131800.00=180025.54元
人工费:(80375754+180025.54)×25%=245946.12元