2021年一级造价工程师《案例分析(土建与安装)》临考卷(二)
搜题
1、某公司拟承建一污水处理厂,与项目相关的信息如下:
1.该项目建设投资为6000万元,建设期2年,运营期10年。建设投资全部形成固定资产,直线法折旧,折旧年限10年,残值率3%。
2.政府为扶持环保企业,承诺运营期内运营方预期收益不足部分由政府补贴。
3.建设投资中有50%是自有资金,50%为银行贷款,贷款利率10%(按年计息),贷款合同约定的还款方式为项目投入使用后5年内等额本金,利息照付偿还。建设投资与贷款在建设期内均衡投入。
4.设计生产能力为日处理4万t污水,每年按365天计算,收费标准为1元/t。
4.投产即达产,年经营成本为770万元。
5.项目所得税税率为25%,为简化计算不考虑销售环节相关税费。
问题:
1、列式计算项目建设期贷款利息与项目的固定资产投资。
2、列式计算项目运营期第2年应偿还的贷款本金及应支付的利息。
3、列式计算运营期第1年的总成本费用、利润总额及应纳所得税。
4、通过计算判别运营期第1年是否满足还款要求。为满足还款要求需政府方的补贴收入为多少万元?
5、假定不考虑政府补贴,不交纳所得税的前提下,运营期第1年需要日处理多少万t污水才能满足还款要求?如果要考虑交纳所得税,运营期第1年需要日处理多少万t污水才能满足还款要求?
1.该项目建设投资为6000万元,建设期2年,运营期10年。建设投资全部形成固定资产,直线法折旧,折旧年限10年,残值率3%。
2.政府为扶持环保企业,承诺运营期内运营方预期收益不足部分由政府补贴。
3.建设投资中有50%是自有资金,50%为银行贷款,贷款利率10%(按年计息),贷款合同约定的还款方式为项目投入使用后5年内等额本金,利息照付偿还。建设投资与贷款在建设期内均衡投入。
4.设计生产能力为日处理4万t污水,每年按365天计算,收费标准为1元/t。
4.投产即达产,年经营成本为770万元。
5.项目所得税税率为25%,为简化计算不考虑销售环节相关税费。
问题:
1、列式计算项目建设期贷款利息与项目的固定资产投资。
2、列式计算项目运营期第2年应偿还的贷款本金及应支付的利息。
3、列式计算运营期第1年的总成本费用、利润总额及应纳所得税。
4、通过计算判别运营期第1年是否满足还款要求。为满足还款要求需政府方的补贴收入为多少万元?
5、假定不考虑政府补贴,不交纳所得税的前提下,运营期第1年需要日处理多少万t污水才能满足还款要求?如果要考虑交纳所得税,运营期第1年需要日处理多少万t污水才能满足还款要求?
本题答案:
问题1:
建设期利息
第1年:1500/2×10%=75万元
第2年:(1500+75+1500/2)×10%=232.5万元
合计:75+232.5=307.5万元
固定资产投资=6000+307.5=6307.5万元
问题2:
运营期第1年应偿还的贷款本金及应支付的利息:
本金=(3000+307.5)/5=661.5万元
利息=(3000+307.5)×10%=330.75万元
运营期第2年应偿还的贷款本金及应支付的利息:
本金=(3000+307.5)/5=661.5万元
利息=(3000+307.5-661.5)×10%=264.6万元
问题3:
运营期第1年的总成本费用、利润总额及应纳所得税:
折旧=(6000+307.5)×(1-3%)/10=611.83万元
总成本费用=770+611.83+330.75=1712.58万元
利润总额=4×365×1-1712.58=-252.58万元
所得税=0万元
问题4:
不仅考虑政府补贴偿还借款本息,还要考虑缴纳所得税,则:
(4×365×1+X-1712.58)×(1-25%)+611.83≥661.5,求得X=318.807(万元)
问题5:
说明:总成本费用按1712.58万元估算
(1)假定不考虑政府补贴,但要交纳所得税的前提下,第1年需要日处理X万t污水才能满足还款要求
(X×365×1-1712.58)×(1-25%)+611.83=661.5
X=4.873(万t)
(2)不考虑政府补贴,也不交纳所得税的前提下,第1年需要日处理X万t污水才能满足还款要求
X×365×1-1712.58+611.83=661.5
X=4.828万t
问题1:
建设期利息
第1年:1500/2×10%=75万元
第2年:(1500+75+1500/2)×10%=232.5万元
合计:75+232.5=307.5万元
固定资产投资=6000+307.5=6307.5万元
问题2:
运营期第1年应偿还的贷款本金及应支付的利息:
本金=(3000+307.5)/5=661.5万元
利息=(3000+307.5)×10%=330.75万元
运营期第2年应偿还的贷款本金及应支付的利息:
本金=(3000+307.5)/5=661.5万元
利息=(3000+307.5-661.5)×10%=264.6万元
问题3:
运营期第1年的总成本费用、利润总额及应纳所得税:
折旧=(6000+307.5)×(1-3%)/10=611.83万元
总成本费用=770+611.83+330.75=1712.58万元
利润总额=4×365×1-1712.58=-252.58万元
所得税=0万元
问题4:
不仅考虑政府补贴偿还借款本息,还要考虑缴纳所得税,则:
(4×365×1+X-1712.58)×(1-25%)+611.83≥661.5,求得X=318.807(万元)
问题5:
说明:总成本费用按1712.58万元估算
(1)假定不考虑政府补贴,但要交纳所得税的前提下,第1年需要日处理X万t污水才能满足还款要求
(X×365×1-1712.58)×(1-25%)+611.83=661.5
X=4.873(万t)
(2)不考虑政府补贴,也不交纳所得税的前提下,第1年需要日处理X万t污水才能满足还款要求
X×365×1-1712.58+611.83=661.5
X=4.828万t
2、甲、乙两城市隔海,当地政府拟缩短两城市的交通距离,提出了建立海底隧道或跨海大桥的两个方案,与两方案相关的效益费用数据见表2-10。

有关专家决定从五个方面进行功能评价,并对各功能的重要性分析如下:F3相对于F4很重要,F3相对于F1较重要,F2与F4同等重要,F4和F5同等重要。各专家对两个方案的功能满足程度的评分见表2-11。

专家组经过技术经济比选,最终选择跨海大桥方案。该项目为当地国有资金投资的重点工程项目,计划于2019年8月8日开工,招标人拟采用公开招标方式进行项目施工招标,并委托某具有招标代理和造价咨询资质的招标代理机构编制了招标文件,接受联合体投标。招标过程中发生了以下事件:
事件1:招标人规定2019年1月20~25日为招标文件发售时间。2月16日下午4时为投标截止时间。投标有效期自投标文件发售时间算起总计120天。
事件2:投标人A、B组织了联合体,资格预审通过后,为提高中标概率,在编制投标时又邀请了比A、B企业资质高一级的企业C共同组织联合体。
事件3:评标基本结束后招标人聘请了市公证机关开展最后清标活动。
事件4:评标委员会于2019年4月29日提出了书面评标报告:E、F企业分列综合得分第一、第二名。4月30日招标人向E企业发出了中标通知书,5月2日E企业收到中标通知书,双方于6月1日签订了书面合同,合同工期为2年。6月15日,招标人向其他未中标企业退回了投标保证金。
问题:
1、试用0-4评分法计算各功能的权重,填入表2-12。

2、以年度寿命周期成本为项目方案成本,利用价值工程选择最佳设计方案。
3、指出事件1的不妥之处,说明理由。
4、事件2中投标人做法是否妥当?说明理由。
5、事件3的做法是否妥当?说明理由。
6、指出事件4中的不妥之处并说明理由。

有关专家决定从五个方面进行功能评价,并对各功能的重要性分析如下:F3相对于F4很重要,F3相对于F1较重要,F2与F4同等重要,F4和F5同等重要。各专家对两个方案的功能满足程度的评分见表2-11。

专家组经过技术经济比选,最终选择跨海大桥方案。该项目为当地国有资金投资的重点工程项目,计划于2019年8月8日开工,招标人拟采用公开招标方式进行项目施工招标,并委托某具有招标代理和造价咨询资质的招标代理机构编制了招标文件,接受联合体投标。招标过程中发生了以下事件:
事件1:招标人规定2019年1月20~25日为招标文件发售时间。2月16日下午4时为投标截止时间。投标有效期自投标文件发售时间算起总计120天。
事件2:投标人A、B组织了联合体,资格预审通过后,为提高中标概率,在编制投标时又邀请了比A、B企业资质高一级的企业C共同组织联合体。
事件3:评标基本结束后招标人聘请了市公证机关开展最后清标活动。
事件4:评标委员会于2019年4月29日提出了书面评标报告:E、F企业分列综合得分第一、第二名。4月30日招标人向E企业发出了中标通知书,5月2日E企业收到中标通知书,双方于6月1日签订了书面合同,合同工期为2年。6月15日,招标人向其他未中标企业退回了投标保证金。
问题:
1、试用0-4评分法计算各功能的权重,填入表2-12。

2、以年度寿命周期成本为项目方案成本,利用价值工程选择最佳设计方案。
3、指出事件1的不妥之处,说明理由。
4、事件2中投标人做法是否妥当?说明理由。
5、事件3的做法是否妥当?说明理由。
6、指出事件4中的不妥之处并说明理由。
本题答案:
问题1:

问题2:
功能综合得分:
隧道:9×0.250+8×0.125+8×0.375+7×0.125+10×0.125=8.375
大桥:8×0.250+7×0.125+5×0.375+6×0.125+9×0.125=6.625
8.375+6.625=15
功能指数:
隧道:8.375/15=0.558
大桥:6.625/15=0.442
成本指数:
130.98+79.25=210.23
隧道:130.98/210.23=0.623
大桥:79.25/210.23=0.377
价值指数:
隧道:0.558/0.623=0.896
大桥:0.442/0.377=1.172
结论:因为跨海大桥的价值系数大,所以选择跨海大桥方案。
问题3:
投标有效期自投标文件发售时间算起的做法不妥当,按照有关规定:投标有效期应从提交投标文件的截止之日起算。
问题4:
不妥。招标人接受联合体投标并进行资格预审的,联合体应当在提交资格预审申请文件前组成。资格预审后联合体增减、更换成员的,其投标无效。
问题5:
事件3的做法不妥当。
清标工作应该在开标后、评标前进行。清标工作组应该由招标人选派或者邀请熟悉招标工程项目情况和招标投标程序、专业水平和职业素质较高的专业人员组成,招标人也可委托工程招标代理、工程造价咨询等单位组织具备相应条件的人员组成清标工作组。
问题6:
事件4存在以下不妥之处:
(1)4月30日招标人向E企业发出了中标通知书的做法不妥。因为按有关规定:依法必须进行招标的项目,招标人应当从收到评标报告之日起3日内公示中标候选人,公示期不得少于3日。
(2)合同签订的日期违规。按有关规定招标人和中标人应当自中标通知书发出之日起30日内,按照招标文件和中标人的投标文件订立书面合同,即招标人必须在5月30日前与中标单位签订书面合同。
(3)6月15日,招标人向其他未中标企业退回了投标保证金的做法不妥。因为按有关规定:招标人最迟应当在书面合同签订后5日内向中标人和未中标的投标人退还投标保证金及银行同期存款利息。
问题1:

问题2:
功能综合得分:
隧道:9×0.250+8×0.125+8×0.375+7×0.125+10×0.125=8.375
大桥:8×0.250+7×0.125+5×0.375+6×0.125+9×0.125=6.625
8.375+6.625=15
功能指数:
隧道:8.375/15=0.558
大桥:6.625/15=0.442
成本指数:
130.98+79.25=210.23
隧道:130.98/210.23=0.623
大桥:79.25/210.23=0.377
价值指数:
隧道:0.558/0.623=0.896
大桥:0.442/0.377=1.172
结论:因为跨海大桥的价值系数大,所以选择跨海大桥方案。
问题3:
投标有效期自投标文件发售时间算起的做法不妥当,按照有关规定:投标有效期应从提交投标文件的截止之日起算。
问题4:
不妥。招标人接受联合体投标并进行资格预审的,联合体应当在提交资格预审申请文件前组成。资格预审后联合体增减、更换成员的,其投标无效。
问题5:
事件3的做法不妥当。
清标工作应该在开标后、评标前进行。清标工作组应该由招标人选派或者邀请熟悉招标工程项目情况和招标投标程序、专业水平和职业素质较高的专业人员组成,招标人也可委托工程招标代理、工程造价咨询等单位组织具备相应条件的人员组成清标工作组。
问题6:
事件4存在以下不妥之处:
(1)4月30日招标人向E企业发出了中标通知书的做法不妥。因为按有关规定:依法必须进行招标的项目,招标人应当从收到评标报告之日起3日内公示中标候选人,公示期不得少于3日。
(2)合同签订的日期违规。按有关规定招标人和中标人应当自中标通知书发出之日起30日内,按照招标文件和中标人的投标文件订立书面合同,即招标人必须在5月30日前与中标单位签订书面合同。
(3)6月15日,招标人向其他未中标企业退回了投标保证金的做法不妥。因为按有关规定:招标人最迟应当在书面合同签订后5日内向中标人和未中标的投标人退还投标保证金及银行同期存款利息。
3、某工程项目,业主通过招标方式确定了承包人,承包人按照工程量清单计价方式和《建设工程施工合同(示范文本)》(GF-2017-0201)签订了施工合同,合同工期为108天。经总监理工程师批准的施工总进度计划如图1所示(时间单位:天),合同约定7月2日开工,各项工作均按最早开始时间安排且匀速施工。每月均按照30天考虑。
工作B、E、G共用一台机械甲,台班单价为500元/台班,台班折旧费为350元/台班;工作F、H共用一台机械乙,台班单价为300元/台班,台班折旧费为140元/台班,施工方人工日工资单价为120元/工日,窝工按正常工资的60%补偿。人员窝工和机械闲置补偿综合税费(包括部分现场管理费和规费、税金)为人材机费用之和的15%。
施工过程中发生如下事件:
事件1:C工作施工时,建设单位要求施工单位对某一构件作破坏性试验,验证设计参数的正确性。对于此项试验,施工方增加检测试验费用2万元(全费用),使C工作延误10天,人员窝工50个工日,施工方提出了工期和费用索赔,建设单位认为试验已包含在正常工程中,不同意施工方的工期和费用索赔。
事件2:D工作施工时,由于施工单位负责材料未能按计划到场,停工8天,人员窝工100个工日。施工单位向项目监理机构提出申请,要求费用补偿和工程延期。
事件3:9月20日至9月23日,出现供电中断,导致工全场性人员窝工80个工日。施工单位向项目监理机构提出申请,要求费用补偿和工程延期。
事件4:为确保工程按原计划工期完成,建设单位要求施工单位进行赶工,同意补偿施工单位赶工费1万元/天(全费用)。

问题:
1、确定图1施工总进度计划的关键线路,确定工作D、H的总时差。
2、事件1中,建设单位的说法是否妥当,说明理由。
3、事件2和事件3,施工单位提出的费用补偿和工程延期是否成立?说明理由。
4、事件1~4发生后,计算工程的实际合同工期和关键线路,各事件施工方可以得到工期和费用补偿分别是多少。
(计算结果以万元为单位,保留三位小数。)
工作B、E、G共用一台机械甲,台班单价为500元/台班,台班折旧费为350元/台班;工作F、H共用一台机械乙,台班单价为300元/台班,台班折旧费为140元/台班,施工方人工日工资单价为120元/工日,窝工按正常工资的60%补偿。人员窝工和机械闲置补偿综合税费(包括部分现场管理费和规费、税金)为人材机费用之和的15%。
施工过程中发生如下事件:
事件1:C工作施工时,建设单位要求施工单位对某一构件作破坏性试验,验证设计参数的正确性。对于此项试验,施工方增加检测试验费用2万元(全费用),使C工作延误10天,人员窝工50个工日,施工方提出了工期和费用索赔,建设单位认为试验已包含在正常工程中,不同意施工方的工期和费用索赔。
事件2:D工作施工时,由于施工单位负责材料未能按计划到场,停工8天,人员窝工100个工日。施工单位向项目监理机构提出申请,要求费用补偿和工程延期。
事件3:9月20日至9月23日,出现供电中断,导致工全场性人员窝工80个工日。施工单位向项目监理机构提出申请,要求费用补偿和工程延期。
事件4:为确保工程按原计划工期完成,建设单位要求施工单位进行赶工,同意补偿施工单位赶工费1万元/天(全费用)。

问题:
1、确定图1施工总进度计划的关键线路,确定工作D、H的总时差。
2、事件1中,建设单位的说法是否妥当,说明理由。
3、事件2和事件3,施工单位提出的费用补偿和工程延期是否成立?说明理由。
4、事件1~4发生后,计算工程的实际合同工期和关键线路,各事件施工方可以得到工期和费用补偿分别是多少。
(计算结果以万元为单位,保留三位小数。)
本题答案:
问题1:
关键线路为:B→E→G
工作D的总时差=5,工作H的总时差=10
问题2:
事件1建设单位的做法不妥当。
理由:按照规定,检验试验费是指对建筑材料、构件和建筑安装物进行一般鉴定、检查所发生的费用,包括自设试验室进行试验所耗用的材料和化学药品等费用,不包括新结构、新材料的试验费和建设单位对具有出厂合格证明的材料进行检验,对构件做破坏性试验及其他特殊要求检验试验的费用。所以建设单位应该补偿施工方的2万元检测费用。因为C工作本身有总时差5天,所以工期只能补偿5天。
问题3:
(1)事件2工期和费用索赔均不成立。
理由:因为施工单位负责材料未能按计划到场属于施工单位应该承担的责任。
(2)事件3工期索赔和费用索赔均成立。
理由:供电中断影响,工期和费用应由业主承担责任。7月2日开工,9月20日至9月23日在网络图中是第79天至第82天,在此期间只有E和F在工作,因E工作为关键工作,所以工期可以索赔4天;F工作总时差为8天,延误4天未超过其总时差,对总工期无影响。费用应补偿机械闲置和人员窝工。
问题4:
事件1~4发生后实际合同工期为117天,关键线路为A→C→E→G
事件1工期索赔=5天,费用索赔=2+50×120×60%/10000×(1+15%)+5×350/10000×(1+15%)(C工作的延误导致E机械的闲置5天)=2.615(万元)
事件2工期索赔=0天,费用索赔=0(万元)
事件3工期索赔=4天,费用索赔=(80×120×60%+350×4+140×4)×(1+15%)/10000=0.888(万元)
事件4无需工期索赔,费用索赔=(117-108)×1=9.000(万元)
问题1:
关键线路为:B→E→G
工作D的总时差=5,工作H的总时差=10
问题2:
事件1建设单位的做法不妥当。
理由:按照规定,检验试验费是指对建筑材料、构件和建筑安装物进行一般鉴定、检查所发生的费用,包括自设试验室进行试验所耗用的材料和化学药品等费用,不包括新结构、新材料的试验费和建设单位对具有出厂合格证明的材料进行检验,对构件做破坏性试验及其他特殊要求检验试验的费用。所以建设单位应该补偿施工方的2万元检测费用。因为C工作本身有总时差5天,所以工期只能补偿5天。
问题3:
(1)事件2工期和费用索赔均不成立。
理由:因为施工单位负责材料未能按计划到场属于施工单位应该承担的责任。
(2)事件3工期索赔和费用索赔均成立。
理由:供电中断影响,工期和费用应由业主承担责任。7月2日开工,9月20日至9月23日在网络图中是第79天至第82天,在此期间只有E和F在工作,因E工作为关键工作,所以工期可以索赔4天;F工作总时差为8天,延误4天未超过其总时差,对总工期无影响。费用应补偿机械闲置和人员窝工。
问题4:
事件1~4发生后实际合同工期为117天,关键线路为A→C→E→G
事件1工期索赔=5天,费用索赔=2+50×120×60%/10000×(1+15%)+5×350/10000×(1+15%)(C工作的延误导致E机械的闲置5天)=2.615(万元)
事件2工期索赔=0天,费用索赔=0(万元)
事件3工期索赔=4天,费用索赔=(80×120×60%+350×4+140×4)×(1+15%)/10000=0.888(万元)
事件4无需工期索赔,费用索赔=(117-108)×1=9.000(万元)
4、某工程采用工程量清单招标方式确定了招标人,业主和中标人签订了单价合同,合同工期为4个月。合同内容包括8项分项工程,其分项工程工程量、费用和所需人工劳动量见表5-27。管理费和利润为人材机费用之和的16%;规费和税金为人材机费用、管理费和利润之和的10%。单价措施费用10万元,总价措施项目费用6万元(其中安全文明施工费3.6万元);暂列金额15万元。

合同中有关工程价款结算与支付约定如下:
1.开工日10天前,发包人应向承包人支付合同价款(扣除暂列金额和安全文明施工费)的20%作为工程预付款,工程预付款在第2、3个月的工程价款中平均扣回;
2.开工后10日内,发包人应向承包人支付安全文明施工费的60%,剩余部分和其他总价措施项目费用在第2、3个月平均支付;
3.单价措施费用按每月平均支付;
4.发包人按每月承包人应得工程进度款的90%支付;
5.当分项工程工程量增加(或减少)幅度超过15%时,应调整综合单价,调整系数为0.9(或1.1);
6.分项工程H的主要材料总量为200m2,原价为90元/m2,该材料价格按照当地造价主管部门公布的价格指数调整,基期指数为110;
7.合同签订时当地造价主管部门规定的人工综合工日单价为60元/工日;
8.如果出现因业主的工程量增加或其他原因导致关键线路上的工作持续时间延长,承包商应在相应分项工程上采取赶工措施,业主给予承包商赶工补偿800元/天(含税费),在结算时结清;
9.工程竣工结算时扣留3%的工程质量保证金,其余工程款一次性结清。
在施工过程中,于每月末检查核实的进度如图5-9的实际进度前锋线所示,最后该工程在第4个月末如期竣工。施工期间,经监理工程师核实及发包人确认的有关事项如下:
(1)从第3个月起,当地造价主管部门规定,人工综合工日单价上调为65元/工日;
(2)第4个月现场签证的计日工费用2万元,其作业对工期无影响;
(3)分项工程H的主要材料公布的价格指数在第4个月调整为120;
(4)分项工程F的实际工程量比清单工程量增加150m2,相应增加单价措施费用1万元。(注:工作F的实际分部分项工程费用和增加的单价措施费用按每月平均支付考虑)

问题:
1.该工程的合同价为多少?工程预付款为多少?
2.第3个月业主应支付给承包商的工程款为多少?
3.第4个月业主应支付给承包商的工程款为多少?
4.试计算合同价调整额、总造价和结算款。
(计算结果保留三位小数)。

合同中有关工程价款结算与支付约定如下:
1.开工日10天前,发包人应向承包人支付合同价款(扣除暂列金额和安全文明施工费)的20%作为工程预付款,工程预付款在第2、3个月的工程价款中平均扣回;
2.开工后10日内,发包人应向承包人支付安全文明施工费的60%,剩余部分和其他总价措施项目费用在第2、3个月平均支付;
3.单价措施费用按每月平均支付;
4.发包人按每月承包人应得工程进度款的90%支付;
5.当分项工程工程量增加(或减少)幅度超过15%时,应调整综合单价,调整系数为0.9(或1.1);
6.分项工程H的主要材料总量为200m2,原价为90元/m2,该材料价格按照当地造价主管部门公布的价格指数调整,基期指数为110;
7.合同签订时当地造价主管部门规定的人工综合工日单价为60元/工日;
8.如果出现因业主的工程量增加或其他原因导致关键线路上的工作持续时间延长,承包商应在相应分项工程上采取赶工措施,业主给予承包商赶工补偿800元/天(含税费),在结算时结清;
9.工程竣工结算时扣留3%的工程质量保证金,其余工程款一次性结清。
在施工过程中,于每月末检查核实的进度如图5-9的实际进度前锋线所示,最后该工程在第4个月末如期竣工。施工期间,经监理工程师核实及发包人确认的有关事项如下:
(1)从第3个月起,当地造价主管部门规定,人工综合工日单价上调为65元/工日;
(2)第4个月现场签证的计日工费用2万元,其作业对工期无影响;
(3)分项工程H的主要材料公布的价格指数在第4个月调整为120;
(4)分项工程F的实际工程量比清单工程量增加150m2,相应增加单价措施费用1万元。(注:工作F的实际分部分项工程费用和增加的单价措施费用按每月平均支付考虑)

问题:
1.该工程的合同价为多少?工程预付款为多少?
2.第3个月业主应支付给承包商的工程款为多少?
3.第4个月业主应支付给承包商的工程款为多少?
4.试计算合同价调整额、总造价和结算款。
(计算结果保留三位小数)。
本题答案:
1.合同价:(50+10+6+15)×(1+10%)=89.100(万元)
预付款:(50+10+6-3.6)×(1+10%)×20%=13.728(万元)
2.草稿纸画图见图5-10。

第3个月:
分项工程款:{2/3×4.8+4/6×[1.15×600×0.018+(600+150-1.15×600)×0.018×0.9+1]+2/4×6.4+1/4×7.2}×(1+10%)=19.574(万元)
单价措施费:1/4×10×(1+10%)=2.750(万元)
总价措施费:1/2×(40%×3.6+6-3.6)×(1+10%)=2.112(万元)
人工费调整额:[1/3×120+4/6×300×(600+150)/600+1/4×160+1/4×200]×(65-60)/10000×(1+16%)×(1+10%)=0.242(万元)
承包人应得工程款:19.574+2.75+2.112+0.242=24.678(万元)
业主应支付工程款:24.678×90%-1/2×13.728=15.346(万元)
3.第4个月:
分项工程款:{1/3×4.8+5.4+2/6×[1.15×600×0.018+(600+150-1.15×600)×0.018×0.9+1]+3/4×7.2}×(1+10%)=18.917(万元)
单价措施费:2.75万元
人工费调整额:[1/3×120+160+2/6×300×(600+150)/600+3/4×200]×(65-60)/10000×(1+16%)×(1+10%)=0.303(万元)
材料费调整额:1/2×200×90/10000×(120-110)/110×(1+16%)×(1+10%)=0.104(万元)
计日工:2×(1+10%)=2.2(万元)
承包人应得工程款:18.917+2.75+0.303+0.104+2.2=24.274(万元)
业主应支付工程款:24.274×90%=21.847(万元)
4.工程量调整额:[1.15×600×0.018+(600+150-1.15×600)×0.018×0.9+1-600×0.018]×(1+10%)=3.951(万元)
赶工费:60×150/600×0.08=1.2(万元)
合同价调整额:(3.951+0.242+0.303+0.104+2.2)+1.2-15×(1+10%)=-8.500(万元)
总造价:89.100-8.500=80.600(万元)
结算款:80.600×(1-3%)-(80.600-1.2)×90%=6.722(万元)
1.合同价:(50+10+6+15)×(1+10%)=89.100(万元)
预付款:(50+10+6-3.6)×(1+10%)×20%=13.728(万元)
2.草稿纸画图见图5-10。

第3个月:
分项工程款:{2/3×4.8+4/6×[1.15×600×0.018+(600+150-1.15×600)×0.018×0.9+1]+2/4×6.4+1/4×7.2}×(1+10%)=19.574(万元)
单价措施费:1/4×10×(1+10%)=2.750(万元)
总价措施费:1/2×(40%×3.6+6-3.6)×(1+10%)=2.112(万元)
人工费调整额:[1/3×120+4/6×300×(600+150)/600+1/4×160+1/4×200]×(65-60)/10000×(1+16%)×(1+10%)=0.242(万元)
承包人应得工程款:19.574+2.75+2.112+0.242=24.678(万元)
业主应支付工程款:24.678×90%-1/2×13.728=15.346(万元)
3.第4个月:
分项工程款:{1/3×4.8+5.4+2/6×[1.15×600×0.018+(600+150-1.15×600)×0.018×0.9+1]+3/4×7.2}×(1+10%)=18.917(万元)
单价措施费:2.75万元
人工费调整额:[1/3×120+160+2/6×300×(600+150)/600+3/4×200]×(65-60)/10000×(1+16%)×(1+10%)=0.303(万元)
材料费调整额:1/2×200×90/10000×(120-110)/110×(1+16%)×(1+10%)=0.104(万元)
计日工:2×(1+10%)=2.2(万元)
承包人应得工程款:18.917+2.75+0.303+0.104+2.2=24.274(万元)
业主应支付工程款:24.274×90%=21.847(万元)
4.工程量调整额:[1.15×600×0.018+(600+150-1.15×600)×0.018×0.9+1-600×0.018]×(1+10%)=3.951(万元)
赶工费:60×150/600×0.08=1.2(万元)
合同价调整额:(3.951+0.242+0.303+0.104+2.2)+1.2-15×(1+10%)=-8.500(万元)
总造价:89.100-8.500=80.600(万元)
结算款:80.600×(1-3%)-(80.600-1.2)×90%=6.722(万元)
5、某拟建项目机修车间,厂房设计方案采用预制钢筋混凝土排架结构,其上部结构如图6.1所示,结构体系中现场预制标准构件和非标准构件的混凝土强度等级,设计控制参考钢筋含量见下表:

另经查阅国家标准图集,所选用的薄腹屋面梁混凝土用量为3.11m³/榀(厂房中间与两端山墙处屋面梁的混凝土用量相同,仅预埋件不同),所选用的T型吊车梁混凝土用量,车间两端为1.13m³/根,其余为1.08m³/根。

问题:
1.根据上述条件和《房屋建筑与装饰工程工程量计算规范》(GB50854-2013)的计算规则,在6.1.1中,列式计算机修车间上部结构构件的混凝土柱、梁工程量及相应钢筋工程量。
2.利用问题1的计算结果和以下相关数据,按《建设工程工程量清单计价规范》GB50500—2013、《房屋建筑与装饰工程量计算规范》GB50854-2013的要求,在答题卡纸表6.1.2中,编制该机修车间上部结构分部分项工程和单价措施项目清单与计价表。
已知相关数据为:
①预制混凝土矩形柱的编码010509001,本车间预制混凝土柱单件体积<3.5m³,就近插入基础杯口,人材机合计513.71元/m³;
②预制混凝土基础梁的清单编码为010510001,本车间基础梁就近地面安装,单件体积<1.2m³,人材机合计402.98元/m³;
③预制混凝土柱顶连系梁的清单编码010511001,本车间连系梁单件体积<0.6m³,安装高度<12m,人材机合计423.21元/m³;
④预制混凝土T型吊车梁的清单编码为010512001,本车间T型吊车梁单件体积<1.2m³,安装高度小于等于9.5m,530.38元/m³;
⑤预制混凝土薄腹屋面梁清单编码为010513001,本车间薄腹屋面梁单件体积<3.2m³,安装高度13m,人材机合计561.35元/m³;
⑥预制混凝土构件钢筋的清单编码为010514001,本车间所用钢筋直径为6~25mm,人材机合计6018.70元/t。
以上项目管理费均以人材机为基础按10%计算,利润均以人材机和管理费合计为基数按5%计算。
问题3:利用以下相关数据,在6.1.3中,编制机修车间土建单位工程招标控制价汇总表。
已知相关数据为:
①一般土建分部分项工程费用为785000.00元;
②措施项目费用62800.00元,其中安全文明施工费26500.00元;
③其他项目费用为屋顶防水专业分包暂估70000.00元;
④规费以分部分项工程、措施项目、其他项目之和为基数计取,规费费率为5.28%。
以上费用均不含增值税可抵扣进项税。
⑤增值税税率为9%。
(计算结果均保留两位小数)

另经查阅国家标准图集,所选用的薄腹屋面梁混凝土用量为3.11m³/榀(厂房中间与两端山墙处屋面梁的混凝土用量相同,仅预埋件不同),所选用的T型吊车梁混凝土用量,车间两端为1.13m³/根,其余为1.08m³/根。

问题:
1.根据上述条件和《房屋建筑与装饰工程工程量计算规范》(GB50854-2013)的计算规则,在6.1.1中,列式计算机修车间上部结构构件的混凝土柱、梁工程量及相应钢筋工程量。
2.利用问题1的计算结果和以下相关数据,按《建设工程工程量清单计价规范》GB50500—2013、《房屋建筑与装饰工程量计算规范》GB50854-2013的要求,在答题卡纸表6.1.2中,编制该机修车间上部结构分部分项工程和单价措施项目清单与计价表。
已知相关数据为:
①预制混凝土矩形柱的编码010509001,本车间预制混凝土柱单件体积<3.5m³,就近插入基础杯口,人材机合计513.71元/m³;
②预制混凝土基础梁的清单编码为010510001,本车间基础梁就近地面安装,单件体积<1.2m³,人材机合计402.98元/m³;
③预制混凝土柱顶连系梁的清单编码010511001,本车间连系梁单件体积<0.6m³,安装高度<12m,人材机合计423.21元/m³;
④预制混凝土T型吊车梁的清单编码为010512001,本车间T型吊车梁单件体积<1.2m³,安装高度小于等于9.5m,530.38元/m³;
⑤预制混凝土薄腹屋面梁清单编码为010513001,本车间薄腹屋面梁单件体积<3.2m³,安装高度13m,人材机合计561.35元/m³;
⑥预制混凝土构件钢筋的清单编码为010514001,本车间所用钢筋直径为6~25mm,人材机合计6018.70元/t。
以上项目管理费均以人材机为基础按10%计算,利润均以人材机和管理费合计为基数按5%计算。
问题3:利用以下相关数据,在6.1.3中,编制机修车间土建单位工程招标控制价汇总表。
已知相关数据为:
①一般土建分部分项工程费用为785000.00元;
②措施项目费用62800.00元,其中安全文明施工费26500.00元;
③其他项目费用为屋顶防水专业分包暂估70000.00元;
④规费以分部分项工程、措施项目、其他项目之和为基数计取,规费费率为5.28%。
以上费用均不含增值税可抵扣进项税。
⑤增值税税率为9%。
(计算结果均保留两位小数)
本题答案:
问题1:

问题2:

问题3:
问题1:

问题2:

问题3:
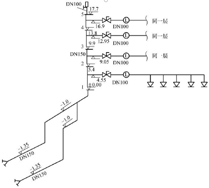
6、某办公楼部分喷淋施工图如图6-Ⅱ-1、图6-Ⅱ-2所示。
喷淋系统给水管道采用镀锌钢管,管径大于DN100mm的采用沟槽连接,管径小于等于DN100mm的采用螺纹连接。
计算管道相关费用时,执行下列规定:
(1)该管道安装工程按设计文件计算出各分部分项工程工料机费用,合计为9400万元,其中人工费占10%。
(2)安装工程脚手架搭拆的工料机费用,按各分部分项工程人工费合计的8%计取,其中人工费占25%,临时设施费按85万元计,其他措施费项目清单费用按165万元计。
(3)其他项目清单费用为110万元。
(4)管理费、利润分别按人工费的60%和40%计。
(5)规费按75万元计,增值税税率按9%计。
(以上费用均不含增值税可抵扣进项税额)

图6-Ⅱ-1某办公楼一层喷淋平面图

图6-Ⅱ-2某办公楼喷淋系统图
问题:
1.根据图6-11-1、图6-Ⅱ-2所示内容和《通用安装工程工程量计算规范》(GB50856-2013)的规定,计算分部分项工程量(管道部分只计算DN150mm垂直镀锌钢管),并将计算过程及结果填入表6-Ⅱ-2“分部分项工程量计算表”。
表6-Ⅱ-2分部分项工程量计算表

2.计算该单位工程费用,将汇总结果填入表6-Ⅱ-3“单位工程费用汇总表”。
表6-Ⅱ-3单位工程费用汇总表

喷淋系统给水管道采用镀锌钢管,管径大于DN100mm的采用沟槽连接,管径小于等于DN100mm的采用螺纹连接。
计算管道相关费用时,执行下列规定:
(1)该管道安装工程按设计文件计算出各分部分项工程工料机费用,合计为9400万元,其中人工费占10%。
(2)安装工程脚手架搭拆的工料机费用,按各分部分项工程人工费合计的8%计取,其中人工费占25%,临时设施费按85万元计,其他措施费项目清单费用按165万元计。
(3)其他项目清单费用为110万元。
(4)管理费、利润分别按人工费的60%和40%计。
(5)规费按75万元计,增值税税率按9%计。
(以上费用均不含增值税可抵扣进项税额)

图6-Ⅱ-1某办公楼一层喷淋平面图

图6-Ⅱ-2某办公楼喷淋系统图
问题:
1.根据图6-11-1、图6-Ⅱ-2所示内容和《通用安装工程工程量计算规范》(GB50856-2013)的规定,计算分部分项工程量(管道部分只计算DN150mm垂直镀锌钢管),并将计算过程及结果填入表6-Ⅱ-2“分部分项工程量计算表”。
表6-Ⅱ-2分部分项工程量计算表

2.计算该单位工程费用,将汇总结果填入表6-Ⅱ-3“单位工程费用汇总表”。
表6-Ⅱ-3单位工程费用汇总表

本题答案:
1.分部分项工程量的具体计算过程如下表所示。

2.编制的“单位工程费用汇总表”如下表所示。

各项费用的计算过程(计算式):
(1)分部分项工程量清单费用合计=9400+9400×10%×(60%+40%)=10340(万元)。
(2)脚手架搭拆费=9400×10%×8%+9400×10%×8%×25%×(60%+40%)=94(万元)。
临时设施费为85万元。
其他措施费项目清单费为165万元。
措施项目清单费用合计=脚手架搭拆费+临时设施费+其他措施费项目清单费=94+85+165=344(万元)。
(3)其他项目清单费用合计为110万元。
(4)规费为75万元。
(5)税金=(10340+344+110+75)×9%=978.21(万元)。
【解析】
本案例第1问主要考查工程量的计算。水喷淋钢管工程量按设计图示管道中心线以长度计算,单位为m,不扣除阀门、管件及各种组件所占长度。水喷淋喷头、水流指示器工程量均按设计图示数量计算,单位为个。消防水泵接合器包括法兰接管及弯头安装,接合器井内阀门、弯管底座、标牌等附件安装,其工程量按设计图示数量计算,单位为套。
本案例第2问主要考查单位工程费用的计算。各单位工程费用是由分部分项工程费、措施项目费、其他项目费、规费和税金组成。工程量清单综合单价包括人工费、材料费、施工机具使用费、管理费和利润。需要注意脚手架搭拆费和临时设施费都属于措施费。
1.分部分项工程量的具体计算过程如下表所示。

2.编制的“单位工程费用汇总表”如下表所示。

各项费用的计算过程(计算式):
(1)分部分项工程量清单费用合计=9400+9400×10%×(60%+40%)=10340(万元)。
(2)脚手架搭拆费=9400×10%×8%+9400×10%×8%×25%×(60%+40%)=94(万元)。
临时设施费为85万元。
其他措施费项目清单费为165万元。
措施项目清单费用合计=脚手架搭拆费+临时设施费+其他措施费项目清单费=94+85+165=344(万元)。
(3)其他项目清单费用合计为110万元。
(4)规费为75万元。
(5)税金=(10340+344+110+75)×9%=978.21(万元)。
【解析】
本案例第1问主要考查工程量的计算。水喷淋钢管工程量按设计图示管道中心线以长度计算,单位为m,不扣除阀门、管件及各种组件所占长度。水喷淋喷头、水流指示器工程量均按设计图示数量计算,单位为个。消防水泵接合器包括法兰接管及弯头安装,接合器井内阀门、弯管底座、标牌等附件安装,其工程量按设计图示数量计算,单位为套。
本案例第2问主要考查单位工程费用的计算。各单位工程费用是由分部分项工程费、措施项目费、其他项目费、规费和税金组成。工程量清单综合单价包括人工费、材料费、施工机具使用费、管理费和利润。需要注意脚手架搭拆费和临时设施费都属于措施费。
7、1.图6.III所示为某汽车库动力配电平面图。

2.动力配电工程的相关定额见下表(本题不考虑焊压铜接线端子工作内容):

3.该工程的管理费和利润分别按人工费的30%和10%计算。
4.相关分部分项工程量清单项目统一编码见下表:

问题:
1.按照背景资料1~4和图6.III所示内容,根据《建设工程工程量清单计价规范》(GB50500-2013和《通用安装工程工程量计算规范》(GB50856—2013)的规定,分别列式计算管、线工程量(不计算进线电缆部分),将计算式与结果填入答题纸上,并在答题纸表6.III.1“分部分项工程和单价措施项目清单与计价表”中计算和编制该分项工程的各分部分项工程清单的综合单价与合价。
2.本工程在编制招标控制价时的数据设定如下:分部分项工程量清单费用为200万元,其中人工费为34万元,发包人提供材料为20万元,总价项目措施费为8万元,单价项目措施费为6万元,暂列金额为12万元,材料暂估价为18万元,发包人发包专业工程暂估价为13万元,计日工为1.5万元,总承包服务费率(发包人发包专业工程)按3%计,总承包服务费率(发包人提供材料)按1%计,规费、税金为15万元。
请根据上述给定的数据,在答题纸表6.III.2“其他项目清单与计价汇总表”中计算并填写其他项目中各项费用的金额;在答题纸表6.III.3“单位工程招标控制价汇总表”中计算并填写本工程招标控制价中各项费用的金额。
(计算结果保留两位小数)

2.动力配电工程的相关定额见下表(本题不考虑焊压铜接线端子工作内容):

3.该工程的管理费和利润分别按人工费的30%和10%计算。
4.相关分部分项工程量清单项目统一编码见下表:

问题:
1.按照背景资料1~4和图6.III所示内容,根据《建设工程工程量清单计价规范》(GB50500-2013和《通用安装工程工程量计算规范》(GB50856—2013)的规定,分别列式计算管、线工程量(不计算进线电缆部分),将计算式与结果填入答题纸上,并在答题纸表6.III.1“分部分项工程和单价措施项目清单与计价表”中计算和编制该分项工程的各分部分项工程清单的综合单价与合价。
2.本工程在编制招标控制价时的数据设定如下:分部分项工程量清单费用为200万元,其中人工费为34万元,发包人提供材料为20万元,总价项目措施费为8万元,单价项目措施费为6万元,暂列金额为12万元,材料暂估价为18万元,发包人发包专业工程暂估价为13万元,计日工为1.5万元,总承包服务费率(发包人发包专业工程)按3%计,总承包服务费率(发包人提供材料)按1%计,规费、税金为15万元。
请根据上述给定的数据,在答题纸表6.III.2“其他项目清单与计价汇总表”中计算并填写其他项目中各项费用的金额;在答题纸表6.III.3“单位工程招标控制价汇总表”中计算并填写本工程招标控制价中各项费用的金额。
(计算结果保留两位小数)
本题答案:
问题1:
(1)钢管Φ25暗配工程量计算式:
(1.4+0.1+6.5+0.1+0.5)+(1.4+0.1+3.5+0.1+0.5)+(1.4+0.1+6+0.1+1.4)+(1.4+0.1+6+0.1+1.4-0.2)=8.6+5.6+9+8.8=32(m)
(2)钢管Φ40暗配工程量计算式:
(1.4+0.1+8+0.1+0.5)+(1.4+0.1+4+0.1+0.5)=10.1+6.1=16.2(m)
(3)管内穿线BV-2.5mm2工程量计算式:
(8.6+5.6)×4+(9+8.8)×5+(4+4+5)×(0.8+0.7)+(4+4)×1+(5+5+5)×(0.3+0.2)=56.8+89+19.5+8+7.5=180.8(m)
(4)管内穿线BV-25mm2工程量计算式:
16.2×4+(4+4)×(0.7+0.8)+(4+4)×1=64.8+12+8=84.8(m)
(5)

问题2:
(1)

(2)
问题1:
(1)钢管Φ25暗配工程量计算式:
(1.4+0.1+6.5+0.1+0.5)+(1.4+0.1+3.5+0.1+0.5)+(1.4+0.1+6+0.1+1.4)+(1.4+0.1+6+0.1+1.4-0.2)=8.6+5.6+9+8.8=32(m)
(2)钢管Φ40暗配工程量计算式:
(1.4+0.1+8+0.1+0.5)+(1.4+0.1+4+0.1+0.5)=10.1+6.1=16.2(m)
(3)管内穿线BV-2.5mm2工程量计算式:
(8.6+5.6)×4+(9+8.8)×5+(4+4+5)×(0.8+0.7)+(4+4)×1+(5+5+5)×(0.3+0.2)=56.8+89+19.5+8+7.5=180.8(m)
(4)管内穿线BV-25mm2工程量计算式:
16.2×4+(4+4)×(0.7+0.8)+(4+4)×1=64.8+12+8=84.8(m)
(5)

问题2:
(1)

(2)