2021年二级建造师《市政公用工程管理与实务》模拟卷(三)
A.应急程序
B.应急处置
C.应急职责
D.保障措施
B
A.项目经理
B.总承包单位技术负责人
C.项目总工
D.监理工程师
B
A.优化混凝土配合比
B.分层浇筑
C.选用水化热较高的水泥
D.控制入模温度
C
A.GCL必须在平整土地上进行
B.GCL不能在有水的地面及下雨时施工,施工完毕后要及时铺设上层结构,如HDPE膜
C.大面积铺设采用搭接方式,需要缝合
D.对GCL出现破损之处采用撒膨润土或加铺GCL方法修补
C
A.当沟槽挖深较大时,应按每层2.5m进行分层开挖
B.采用机械挖沟槽时,沟槽分层的深度按机械性能确定
C.在沟槽边坡稳固后设置供施工人员上下沟槽的安全梯
D.槽底原状地基土不得扰动
A
A.补焊或盖压补焊
B.补麻、补灰
C.两合揣袖
D.更换
A
A.弹簧支架
B.固定支架
C.导向支架
D.滑动支架
A
A.0.4MPa小于P小于或等于0.8MPa
B.0.8MPa小于P小于或等于1.6MPa
C.1.6MPa小于P小于或等于2.5MPa
D.2.5MPa小于P小于或等于4.0MPa
C
A.试验准备→水池注水→水池内水位观测→有关资料整理
B.水池注水→试验准备→水池内水位观测→有关资料整理
C.试验准备→水池注水→水池内水位观测→蒸发量测定→有关资料整理
D.水池注水→试验准备→水池内水位观测→蒸发量测定→有关资料整理
A
A.冻结加固的地层强度高
B.地下水封闭效果好
C.适用于无水砂砾地层
D.地层整体固结性好
C
A.150~160mm
B.100~150mm
C.30~40mm
D.50~60mm
D
A.单侧壁导坑法
B.双侧壁导坑法
C.全断面法
D.中洞法
A
A.弯拉强度大,弯沉变形较大
B.弯拉强度小,弯沉变形较大
C.弯拉强度大,弯沉变形很小
D.弯拉强度小,弯沉变形很小
C
A.换土垫层
B.排水固结
C.振密、挤密
D.置换及拌入
B
A.具有良好的板体性
B.初期强度一致
C.水稳性的程度一致
D.抗冻性的程度一致
A
A.1m
B.1.1m
C.1.2m
D.1.5m
A
A.65%
B.70%
C.75%
D.80%
C
A.应对称进行,高差不宜超过500mm
B.应对称进行,高差不宜超过300mm
C.可先填一侧,再填另外一次
D.两侧在高差500mm内交替进行填土
B
A.激光准直仪
B.全站仪
C.经纬仪
D.光学水准仪
A
A.分部工程施工图预算
B.单位工程施工图预算
C.单项工程综合预算
D.建设项目总预算
A
A.质量监督注册登记表
B.施工许可证或开工审批手续
C.施工单位签署的质量合格文件
D.审定设计批复文件
E.规划许可证及附件、附图
A,B,D,E
A.厚度
B.宽度
C.拌合均匀性
D.平整度
E.纵断高程
A,B,D,E
A.拆除现场应设作业区,边界设警示标志,由专人值守
B.拆除采用机械作业时应由专人指挥
C.拆除顺序按要求由上而下逐层进行
D.拆除顺序按要求上下同时作业
E.拆除的模板、杆件、配件轻拿轻放、分类码放
A,B,C,E
A.工序(工作)之间的逻辑关系不易表达清楚
B.不能确定计划的关键工作、关键线路与时差
C.可比较直观地反映出工程持续时间
D.在进度偏离原订计划时不能迅速简单地进行调整与控制
E.可比较直观地反映出施工资源的需求
A,B,D
A.终孔孔径
B.轴向曲率半径
C.管道性能
D.安全储备
E.管道长度
A,B,D,E
A.试验管段所有敞口应封闭,不得有渗漏水现象
B.试验管段不得用闸阀做堵板,不得含有消火栓、水锤消除器、安全阀等附件
C.水压试验前应清除管道内的杂物
D.应做好水源引接、排水等疏导方案
E.管道已回填土
A.相邻两幅及上、下层的横向接缝均应错位0.5m以上
B.采用梯队作业摊铺时应选用冷接缝
C.高等级道路的表面层横向接缝应采用斜接缝
D.冷接缝上、下层的纵缝应错开300~400mm以上
E.热接缝上、下层的纵缝应错开150mm以上
A.设计未要求,张拉时混凝土构件的强度不得低于设计值的70%
B.张拉前应根据设计要求对孔道的摩阻损失进行实测
C.长度小于25m的直线预应力筋,可在一端张拉
D.当设计无要求时,预应力筋的张拉顺序宜先中间,后上、下或两侧
E.张拉控制应力达到稳定后方可锚固
(1)根据现场条件和设计图纸要求,建设空心板预制场。预制台座采用槽式长线台座,横向连续设置8条预制台座,每条台座1次可预制空心板4片,预制台座构造如图2-1所示。

(2)将空心板的预制工作分解成①清理模板、台座,②涂刷隔离剂,③钢筋、钢绞线安装,④切除多余钢绞线,⑤隔离套管封堵,⑥整体放张,⑦整体张拉,⑧拆除模板,⑨安装模板,⑩浇筑混凝土,⑪养护,⑫吊运存放等12道施工工序,并确定了施工工艺流程如图2-2所示。(注:①~⑫为各道施工工序代号)
(3)计划每条预制台座的生产(周转)效率平均为10天,即考虑各条台座在正常流水作业节拍的情况下,每10天每条预制台座均可生产4片空心板。
(4)依据总体进度计划空心板预制80天后,开始进行吊装作业,吊装进度为平均每天吊装8片空心板。

1.根据图2-1预制台座的结构型式,指出该空心板的预应力体系属于哪种型式?写出构件A的名称。
2.指出构件一、构件二的名称,并说明张拉过程中两者之间的关系。
3.写出图2-2中空心板施工工艺流程框图中施工工序B、C、D、E、F、G的名称。(选用背景资料给出的施工工序①~⑫的代号或名称作答)
4.列式计算完成空心板预制所需天数。
5.空心板预制进度能否满足吊装进度的需要?说明原因。
6.写出工序④切除多余钢绞线是否能用电弧切割,若不能,请写出可以使用的机械设备。
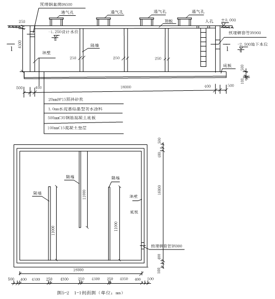
A公司承建某地下水池工程,为现浇钢筋混凝土结构。混凝土设计强度为C35,抗渗等级为P8。水池结构内设有三道钢筋混凝土隔墙,顶板上设置有通气孔及人孔,水池结构如图5-1、5-2所示。
A公司项目部将场区内降水工程分包给B公司。结构施工正值雨期,为满足施工开挖及结构抗浮要求,B公司编制了降排水方案,经B公司项目部技术负责人审批后报送监理单位。
水池顶板混凝土采用支架整体现浇,项目部编制了顶板支架支拆施工方案,明确了拆除支架时混凝土强度、拆除安全措施,如设置上下爬梯、洞口防护等。
项目部计划在顶板模板拆除后,进行底板防水施工,然后再进行满水试验,被监理工程师制止。
项目部编制了水池满水试验方案,方案中对试验流程、试验前准备工作、注水过程、水位观测、质量、安全等内容进行了详细的描述,经审批后进行了满水试验。

问题:
1.B公司方案报送审批流程是否正确?说明理由。
2.请说明B公司降水注意事项、降水结束时间。
3.项目部拆除顶板支架时混凝土强度应满足什么要求?请说明理由。请列举拆除支架时,还有哪些安全措施?
4.请说明监理工程师制止项目部施工的理由。
5.满水试验前,需要对哪个部位进行压力验算?水池注水过程中,项目部应关注哪些易渗漏水部位?除了对水位观测外,还应进行哪个项目观测?
6.请说明满水试验注满水后,测读水位的要求;计算池壁和池底的浸湿面积(单位:m2)。

施工过程中,基坑土方开挖至深度8m处,侧壁出现渗漏,并夹带泥沙;迫于工期压力,项目部继续开挖施工;同时安排专人巡视现场,加大地表沉降、桩身水平变形等项目的检测频率。按照规定,项目部编制了模板支架及混凝土浇筑专项施工方案,拟在基坑单侧设置泵车浇筑调蓄池结构混凝土。
问题:
1.列式计算池顶模板承受的结构自重分布载荷q(kN/m2),(混凝土重度y=25kN/m3);根据计算结果,判断模板支架安全专项施工方案是否需要组织专家论证,说明理由。
2.计算止水帷幕在地下水中的高度。
3.指出基坑侧壁渗漏后,项目部继续开挖施工存在的危险。
4.指出基坑施工过程中风险最大的时段,并简述稳定坑底应采取的措施。
5.写出上图中细部构造A的名称,并说明此缝施工要求。
1.指出建设单位存在的违规事项。
2.指出该公司选用项目经理的违约之处,说明担任本工程项目经理还应具备的基本条件。
3.指出项目部抽调焊工做法中存在的问题,说明正确做法。
4.焊口防腐焊接外观检查时有什么要求。
5.指出功能性试验存在的问题,说明正确做法。