2021年二级建造师《建筑工程管理与实务》模拟卷(三)
A.水泥的终凝时间是从水泥加水拌合至水泥浆开始失去可塑性所需的时间
B.六大常用水泥的初凝时间均不得长于45min
C.水泥的体积安定性不良是指水泥硬化后产生不均匀的体积变化
D.水泥中的碱含量太低更容易产生碱骨料反应
C
A.均布面荷载
B.线荷载
C.集中荷载
D.活荷载
B
A.坚固实用
B.效益优先
C.经济合理
D.技术先进
B
A.18.30
B.19.10
C.19.40
D.21.60
D
A.一级不宜大于200mm和20倍箍筋直径的较大值
B.二级不宜大于200mm和20倍箍筋直径的较大值
C.三级不宜大于250mm和20倍箍筋直径的较大值
D.四级不宜大于300mm
B
A.托儿所、幼儿园专用活动场所的栏杆必须采用防止攀登的构造
B.临空高度25m部位,栏杆高度为1.08m
C.临空高度22m部位,栏杆高度为1.06m
D.室内回廊、内天井、上人屋面及室外楼梯等临空处应设置防护栏杆
B
A.材料强度高
B.施工工期短
C.抗震性能好
D.耐火性好
D
A.保温材料导热系数越大,保温性能越好
B.金属保温材料的保温效果优于非金属
C.保温材料孔隙尺寸越大保温性能越好
D.保温材料导热系数随温度的升高而增大
D
A.当设计无要求时,搭设梁底模板时,模板起拱高度应为8~32mm
B.当梁标准养护试件强度达到规定要求后,项目经理方可批准拆模
C.当梁的混凝土立方体抗压强度≥30MPa后,方可拆除底模板
D.模板拆除时,应先拆除底模板,再拆除侧模板
C
A.屋面防水工程应根据建筑物的类别、重要程度、使用功能要求确定防水等级
B.屋面防水应以防为主,以排为辅
C.找坡应按屋面排水方向和设计坡度要求进行,找坡层最薄处厚度不宜小于200mm
D.卷材宜平行屋脊铺贴,上下层卷材不得相互垂直铺贴
C
A.120mm厚墙
B.宽度为1.2m窗间墙
C.轻质墙体
D.夹心复合墙外叶墙
B
A.1.2
B.1.5
C.1.8
D.2.0
D
A.由对应类别合格的焊工施焊
B.施焊镇静钢板的厚度不大于30mm时,环境空气温度不应低于-20℃
C.施焊镇静钢板的厚度超过30mm时,温度不应低于-5℃
D.当施焊沸腾钢板时,环境空气温度应高于10℃
A
A.混凝土墙洞口采用射钉或膨胀螺钉固定
B.砖墙洞口采用射钉固定,且必须固定在砖缝处
C.轻质砌块或加气混凝土洞口可在预埋混凝土块上用射钉或膨胀螺钉固定
D.设有预埋铁件的洞口应采取焊接的方法固定,也可先在预埋件上按紧固件规格打基孔,然后用紧固件固定
B
A.项目技术负责人
B.施工单位技术负责人
C.项目负责人
D.专业监理工程师
B
A.比较密封的室内、容器内、地下室等场所
B.禁火区域内
C.现场堆有大量可燃和易燃物质的场所
D.登高焊、割作业
D
A.四周设防护栏杆,洞口下张设安全平网
B.坚实的盖板盖严
C.扣件扣接钢管而成的网格栅防护
D.采用防护栏杆,下设挡脚板
A
A.试验检验
B.抽样检验
C.见证检验
D.性能分析检验
C
A.不良行为记录信息的公布时间为行政处罚决定做出后7日内
B.良好行为记录信息公布期限一般为3年
C.不良行为记录信息公布期限一般为3个月至3年
D.公布内容应与建筑市场监管信息系统中的企业、人员和项目管理数据库相结合,形成信用档案,内部长期保留
C
A.3%,3
B.3%,1
C.1%,3
D.1%,1
C
A.耐蚀性差
B.耐热性差
C.干缩性较大
D.抗冻性好
E.水化热较小
A,B,D
A.屈服强度
B.断后伸长率
C.抗拉强度
D.抗剪强度
E.抗压强度
A,B,C
A.强度
B.刚度
C.平整度
D.稳定性
E.实用性
A,B,D
A.喷涂
B.滚涂
C.刷涂
D.弹涂
E.刮涂
A,B,C,D
A.基底已处理的部位
B.持力层明显不均匀部位
C.有浅埋古井的部位
D.局部有软弱下卧层的部位
E.设计文件注明的部位
B,C,D,E
A.现场临时用水包括生产用水、机械用水、生活用水和消防用水
B.严禁消防竖管作为施工用水管线
C.高度超过24m的建筑工程,应安装临时消防竖管,管径不得小于75mm
D.现场临时用水必须根据现场工况编制临时用水方案
E.自行设计,消防干管直径应不小于75mm
A.卷材防水层热熔法和焊接法不宜低于-10°C
B.卷材防水层冷粘法和热粘法不宜低于5°C
C.卷材防水层自粘法不宜低于10°C
D.屋面保温层用水泥砂浆粘贴的板状保温材料不宜低于5°C
E.屋面保温层干铺的保温材料不可在负温度下施工
A.房屋建筑工程保修期从工程竣工验收合格之日起计算
B.工程质量保修书中应当明确建设工程的保修范围、保修期限和保修责任等内容
C.电气管线、给排水管道、设备安装工程的最低保修期限为2年
D.供热与供冷系统的最低保修期限为1个采暖期、供冷期
E.因保修不及时造成新的人身、财产损害,由造成拖延的责任方承担赔偿责任
A.建设单位应当收集和整理工程准备阶段形成的文件,并进行立卷归档
B.在组织工程竣工验收前,提请当地的城建档案管理机构对工程档案进行预验收的主体为施工单位
C.建设单位应当对列入城建档案管理机构接收范围的工程,工程竣工验收后6个月内,应向当地城建档案管理机构移交一套符合规定的工程档案
D.勘察、设计、施工、监理等单位应将本单位形成的工程文件立卷后向建设单位移交
E.建设工程项目由几个单位承包的,各承包单位负责收集、整理立卷其承包项目的工程文件,并应及时向建设单位移交
在合同履约过程中,发生了下列事件:
事件一:施工单位对中标的工程造价进行了分析,费用构成情况是:人工费390万元,材料费2100万元,机械费210万元,利润120万元,规费90万元,增值税10万元,管理费及其他附加费150万元。
事件二:施工单位进场后,及时按照现场管理的要求在工程出入口处的醒目位置设置了“五牌一图”。
事件三:由于工程地质条件复杂,距基坑边5米处为居民住宅区,因此施工单位在土方开挖过程中,安排专人随时观测周围的环境变化,并对施工现场的防护栏杆进行了检查,检查中发现:防护栏杆上杆离地高度为0.8~1.0m,下杆离地高度为0.5~0.6m;未经设计计算,横杆长度大于3m的部位,加设了栏杆柱;栏杆在基坑四周固定,钢管打入地面30~50cm深,钢管离边口的距离50cm;栏杆下边设置了15cm高的挡脚板。
事件四:施工单位按照成本管理工作要求,有条不紊的开展成本计划、成本控制、成本核算等一系列管理工作。
问题:
1.事件一中,除税金外还有哪些费用在投标时不得作为竞争性费用?计算施工单位的中标造价是多少万元?
2.事件二中,施工现场的五牌一图具体内容是什么?
3.指出事件三中的不妥之处,说明正确做法。施工单位在土方开挖过程中还应注意检查哪些情况?
4.事件四中,施工单位还应进行哪些成本管理工作?成本核算应坚持的“三同步”原则是什么?
在施工过程中,发生了如下事件:
事件一:为宣传企业形象,总承包单位在现场办公室前空旷场地树立了悬挂企业旗帜的旗杆,旗杆与基座预埋件焊接连接。
事件二:该工程属特殊建设工程,建设单位已向公安机关消防机构申请消防设计审核,工程竣工后建设单位督促总监理工程师组织了消防工程的验收。
事件三:施工总承包单位督促专业分包单位针对深基坑组织编制了专项施工方案,并指示基坑分包单位组织了专家论证,定稿后由总承包单位项目总工、总监理工程师签批后组织实施。
事件四:工程竣工验收后,建设单位指令监理单位将工程资料交施工单位汇总,施工单位把汇总资料提交给城建档案管理机构进行工程验收。
【问题】
1.事件一中,旗杆与基座预埋件焊接是否需要开动火证?若需要,请说明动火等级并给出相应的审批程序。
2.事件二中建设单位的做法是否正确?说明理由。
3.事件三中,深基坑专项施工方案编制、签批、专家论证是否妥当?分别说明理由。
4.指出事件四中存在哪些不妥,并分别给出正确做法。
工程实施过程中发生了下列事件:
事件一:施工单位将施工作业划分为A、B、C、D四个施工过程,分别由指定的专业班组进行施工,每天一班工作制,组织无节奏流水施工,流水施工参数见下表(单位:d):

事件二:在首层阶梯报告厅顶板模板工程验收中,项目经理发现在最顶部两水平拉杆中间加设了一道水平拉杆;水平拉杆的端部与四周建筑物间隔100mm。安全总监下达了整改通知。
事件三:在施工过程中,该工程所在地连续下了6d特大暴雨(超过了当地近10年来该季节的最大降雨量),洪水泛滥,给建设单位和施工单位造成了较大的经济损失。施工单位认为这些损失是由于特大暴雨(不可抗力事件)造成的,提出下列索赔要求(以下索赔数据与实际情况相符):
(1)工程清理、恢复费用18万元;
(2)施工机械设备重新购置和修理费用29万元;
(3)工期顺延6d。
问题:
1.事件一中,列式计算A、B、C、D四个施工过程之间的流水步距分别是多少天?流水施工的计划工期是多少天?
2.指出事件二中的不妥之处,分别写出正确做法。水平拉杆无处可顶时的措施有哪些?
3.模板设计无要求时,模板拆除的顺序和方法是什么?
4.事件三中,分别指出施工单位的索赔要求是否成立?说明理由。
施工总承包单位将建设工程的基坑工程分包给了专业分包单位。
施工总承包单位项目经理部成立了安全生产领导小组,并配备了3名土建类专职安全员。项目经理部对现场的施工安全危险源进行了分辨识别,编制了项目现场防汛应急救援预案,按规定履行了审批手续,并要求专业分包单位按照应急救援预案进行一次应急演练。专业分包单位以没有配备相应救援器材为由拒绝。总承包单位要求专业分包单位根据国家和行业相关规定进行整改。
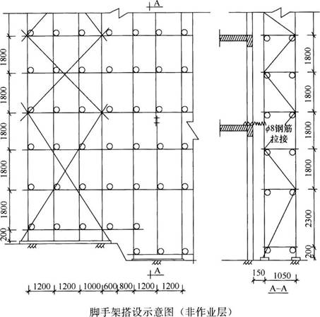
外装修施工时,施工单位搭设了扣件式钢管脚手架(如下图所示)。架体搭设完成后,进行了验收检查,提出了整改意见。

项目经理组织参建各方人员进行高处作业专项安全检查。检查内容包括安全帽、安全网、安全带、悬挑式物料钢平台等。监理工程师认为检查项目不全面,要求按照《建筑施工安全检查标准》JGJ59—2011予以补充。
问题
1.本工程至少应配置几名专职安全员?根据《住房和城乡建设部关于印发建筑施工企业主要负责人、项目负责人和专职安全生产管理人员安全生产管理规定实施意见的通知》(建质[2015]206号),项目经理部配置的专职安全员是否妥当?并说明理由。
2.对于施工总承包单位编制的防汛应急救援预案,专业分包单位应如何执行?
3.指出背景资料中脚手架搭设的错误之处(请至少列出5条)。
4.按照《建筑施工安全检查标准》JGJ59—2011,现场高处作业检查的项目还应补充哪些?