2021年一级建造师《市政公用工程管理与实务》临考卷
A.摊铺机应采用人工找平方式
B.施工中应随时检查铺筑层厚度、路拱及横坡
C.摊铺的混合料,人工在反复修整时要注意平整度
D.最低摊铺温度根据气温和下卧层表面温度的平均值来确定
B
A.骨架-密实结构
B.悬浮-密实结构
C.骨架-空隙结构
D.骨架-悬浮结构
C
A.中、轻交通
B.次干路及以下
C.各种交通
D.重交通
C
A.套箱围堰
B.钢筋混凝土板桩围堰
C.钢板桩围堰
D.双壁围堰
A
A.梁式桥
B.刚架桥
C.悬索桥
D.拱式桥
B
A.构件应按照其制作的先后顺序编号存放
B.预应力混凝土梁存放时间不得超过6个月
C.大型构件多层叠放时,不应超过3层
D.小型构件多层叠放时,不宜超过6层
C
A.100
B.200
C.300
D.500
A
A.基坑围护结构变形小
B.施作混凝土结构形成的水平施工缝容易处理
C.有效控制基坑周围土体变形
D.基坑底部土体稳定,隆起小
B
A.浅埋暗挖
B.明挖法
C.盾构法
D.盖挖法
C
A.在盾尾空隙形成的瞬间进行同步注浆
B.同步注浆可有效防止岩体的坍塌
C.在二次注浆结束后必须进行堵水注浆
D.通过管片吊装孔对管片背后进行二次补强注浆
C
A.严格按照设计坡度开挖,不得挖反坡
B.减少坡顶位置材料堆放的数量,减轻坡顶位置压力
C.地下工程施工期间应严密监测坡顶位移
D.边坡若有失稳征兆,应及时采取削坡、坡顶卸荷或其他有效措施
B
A.阻挡直达声的传播
B.隔离透射声
C.使绕射声有足够的衰减
D.屏蔽反射声
D
A.消化池
B.清水池
C.曝气池
D.氧化沟
B
A.4天
B.5天
C.6天
D.7天
C
A.混凝土底板和顶板,应连续浇筑不得留置施工缝
B.池壁与顶部相接处的施工缝,宜留在底板上面不小于200mm处;底板与池壁连接有腋角时,宜留在腋角上面不小于200mm处
C.池壁与底部相接处的施工缝,宜留在顶板下面不小于200mm处;有腋角时,宜留在腋角下部
D.构筑物处地下水位或设计运行水位高于底板顶面5m时,施工缝处宜设置高度不小于200mm、厚度不小于3mm的止水钢板
A
A.滑动
B.悬吊
C.导向
D.滚珠
D
A.补偿器的临时固定装置在管道安装、试压、保温完毕后,应将紧固件拧紧
B.补偿器应与管道保持同轴
C.安装操作时不得损伤补偿器,不得采用使补偿器变形的方法来调整管道的安装偏差
D.补偿器安装前,管道和固定支架之间不得进行固定
A
A.100mm
B.150mm
C.200mm
D.250mm
B
A.GCL不能在有水的地面及下雨时施工
B.GCL在坡面与地面拐角处应设置附加层,先铺设500mm宽沿拐角两面各250mm后,再铺大面积防水垫
C.GCL搭接宽度控制在250±50mm范围内,拉平,无褶皱、悬空现象
D.GCL搭接尽量采用逆坡搭接,即下压上的搭接方式,避免出现十字搭接,应尽量采用品形分布
D
A.施工招标投标活动受地区或部门的限制
B.公开招标是向特定的法人或其他组织发出投标邀请
C.投标人根据招标文件载明的项目实际情况,拟在中标后将中标项目的部分主体工作进行分包的,应当在投标文件载明
D.投标保证金有效期应当与投标有效期一致
D
A.石灰稳定粒料
B.水泥稳定粒料
C.二灰稳定粒料
D.级配碎石
E.级配砾石
A,B,C
A.灌注桩钢筋笼内径应比套管内径小60~80mm
B.宜采用预拌混凝土,其骨料粒径不宜大于40mm
C.钢筋笼放入泥浆后5h内必须浇筑混凝土
D.浇筑时混凝土的温度不得低于5℃
E.套管成孔的灌注桩任何一段平均直径与设计直径的比值不得小于1.0
A,B,D,E
A.管棚不得采用焊接钢管
B.钢管直径不超过150mm
C.钢管间距应根据支护要求予以确定,宜为300~500mm
D.双向相邻管棚的搭接长度不小于3m
E.施工工艺流程:测放孔位→钻机就位→水平钻孔→压入钢管→注浆(向钢管内和管周围土体)→封口
C,D,E
A.施工技术难度低
B.地层整体固结性好
C.成本较低
D.对工程环境污染小
E.地下水封闭效果好
B,D,E
A.选择可靠的降低地下水位方法
B.基坑受承压力水影响时,应进行承压水降压计算
C.施工过程中间断降排水
D.有备用降水机
E.降排水应输送至抽水影响半径范围以外的河道或排水管道
A,B,D,E
A.第一节沉井制作高度必须高于刃脚部分
B.设计无要求时,混凝土强度应达到设计强度等级75%后,方可浇筑后节混凝土
C.支撑于地面的模板,模板底部应距地面不小于1m
D.外排脚手架应与池壁模板固定牢固,防止倾覆
E.排水下沉时,挖土应分层、均匀、对称进行
某城市道路改扩建工程,现有道路为单幅水泥混凝土道路,幅宽15m,交通拥堵,拟将其扩建成宽30m,路中设宽5m绿化隔离带的沥青混凝土道路,且在绿化隔离带下新建雨水管道,新旧道路截面如下图所示。

为利用现有资源,经对现况水泥路面检测后,决定除绿化带部位的路面外,其余路面可经铣刨清理后,直接铺装改性沥青表面层。为了使水泥混凝土面层与沥青面层结合较好和防止路面出现反射裂缝,施工项目部在铣刨后的混凝土路面上采用土工织物设置应力削减层的施工保证措施。
项目部施工组织设计对施工部署分为以下几个阶段:
①两侧加宽段路基、基层施工;
②分幅摊铺表面层沥青混凝土;
③水泥混凝土面层切割破除(绿化隔离带位置);
④雨水管线施工;
⑤分幅路缘石砌筑;
⑥分幅摊铺底面层沥青混凝土;
⑦现况水泥混凝土路面分幅铣刨清理。
施工项目部按照施工方案搭设围挡,设置交通指示和警示信号标志。鉴于施工工期紧迫,项目部拟加快底基层施工进度,采取如下措施:采用初凝时间3h以下的32.5级硅酸盐水泥和现场原状松散土,按照设计配比现场路拌水泥稳定土;水泥稳定土分层碾压成型,保湿养护3d后即进行下道工序。
问题:
1、项目部对本工程最合理的施工顺序是什么?说明理由。
2、简述项目部采取的土工织物应力削减层施工注意事项。
3、施工围挡搭建需注意哪些相关事宜,需设置哪些标志?
4、指出项目部拟采取措施的不当之处,并给出正确做法。
5、指出A、B的名称,简述A和B施工当中需要注意问题。
某公司中标一座城市跨河桥梁,该桥跨河部分总长101.5m,上部结构为30m+41.5m+30m三跨预应力混凝土连续箱梁,采用支架现浇法施工。
项目部编制的支架安全专项施工方案的内容有:为满足河道18m宽通航要求,跨河中间部分采用贝雷梁-碗扣组合支架形式搭设门洞;其余部分均采用满堂式碗扣支架;满堂支架基础采用筑岛围堰,填料碾压密实;支架安全专项施工方案分为门洞支架和满堂支架两部分内容,并计算支架结构的强度和验算其稳定性。
项目部编制了混凝土浇筑施工方案,其中混凝土裂缝控制措施有:
(1)优化配合比,选择水化热较低的水泥,降低水泥水化热产生的热量;
(2)选择一天中气温较低的时候浇筑混凝土;
(3)对支架进行监测和维护,防止支架下沉变形;
(4)夏季施工保证混凝土养护用水及资源供给。
问题:
1.支架安全专项施工方案还应补充哪些验算?说明理由。
2.模板施工前还应对支架进行哪项试验?主要目的是什么?
3.本工程搭设的门洞应采取哪些安全防护措施?
4.对本工程混凝土裂缝的控制措施进行补充。
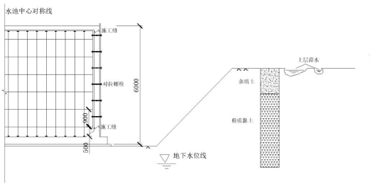
某单位承建城市半地下式混凝土沉淀池工程,池体结构为矩形结构,平面尺寸为10×12m;高为6m,设计水深4.8m,采用钢筋混凝土薄壁结构,混凝土设计强度C30,防渗等级P8。池体地下部分处于粉质黏土层,有少量浅层滞水,施工接近雨期。
沉淀池基坑采用放坡开挖,坡面采用挂网喷浆形式,基坑坡面有少量清水渗出。顶板浇筑采用满堂支架法浇筑,支架剖面如图所示,方案报监理审批时,被监理驳回。

水池底板施工完成之后,项目部按照要求进行养护,在养护过程中,发现沉淀池底板处产生深层裂缝,项目部按要求对裂缝进行处理。
施工临近雨期,无抗浮设计,项目部根据以往经验编制了雨期施工方案,并由现场施工员对劳务分包进行技术交底。
问题:
1、沉淀池基坑应采取哪种降水方式,并说明理由。
2、结合图3-1,写出被监理驳回的原因有哪些。
3、请写出施工缝应如何处理。
4、试分析池底板混凝土产生裂缝的可能原因。
5、简述无抗浮设计时,项目部在雨期施工时应采取哪些施工措施。
某综合市政工程,拟建道路下设计有3m×2m的雨水方沟,方沟为钢筋混凝土结构,另有污水、给水、热力和燃气等管线,设计道路结构为480mm石灰粉煤灰稳定粒料基层,60mm粗粒式沥青混凝土、40mm细粒式沥青混凝土面层。地质资料显示地面以下土质主要为砂砾石及流砂。施工单位进场后对开挖较深的雨水方沟采用人工挖孔桩围护结构。
在挖孔桩开挖作业前,监理工程师巡查场地发现其施工现场存在安全隐患要求施工单位进行整改,经整改后符合要求,开始进行挖孔施工,待第一根挖孔桩挖至20m时发生了桩孔坍塌现象,项目部经过分析,认为事故原因主要是钢筋混凝土支护孔壁的参数未达到设计要求。
项目部确定本工程的功能性试验为污水管线闭水试验、给水管线强度试验和冲洗消毒、热力与燃气管线的强度和严密性试验。雨水方沟和给水管线回填前,施工单位进行竣工测量,在绘制成图时,对于雨水方沟采用不同线体绘出其竣工位置;对于给水管线,用各种不同颜色的线体绘出其中心位置。
道路面层沥青铺装中,建设单位为协调整个建设项目,要求施工单位先铺下层的粗粒式沥青,作为施工道路,第二年再铺筑上面层的细粒式沥青混凝土,为保证上面层的铺装质量,施工单位向建设单位提出了相应的技术措施,并附上了因此增加的相应费用明细。
问题:
1、人工挖孔桩塌孔可能是因为钢筋混凝土护壁的哪些参数未符合设计要求?
2、简述人工挖孔桩施工现场应准备的设备设施及注意事项。
3、本工程的功能性试验还有哪些,请补充。
4、在竣工图中,雨水方沟和给水管线还应注明哪些内容?
5、针对面层沥青第二年铺装,施工单位应做好哪些技术保证措施,建设单位是否应该接受施工单位提出增加费用报价的要求?
某项目部承建一生活垃圾填埋场工程,规模为30万吨,场地位于城乡结合部。填埋场防渗层的下层为泥质防渗层,上层为高密度聚乙烯(HDPE)膜,项目部通过招标形式选择了高密度聚乙烯膜供应商及专业焊接队伍。施工队伍将HDPE膜施工程序绘制成流程图,如下图所示:

工程施工过程中发生以下事件:
事件一:为方便施工,施工单位占用城市绿地作为临时便道,项目部上报建设单位,建设单位同意。
事件二:为满足高密度聚乙烯膜焊接进度要求,专业焊接队伍购进一台双轨热熔焊机,经外观验收,立即进场作业。
事件三:施工单位分别采用了真空和电火花测试法对焊接位置进行了检验。
问题:
1、请补充HDPE膜施工流程图中的A、B、C三个工序。
2、给出事件一的正确处置方法。
3、给出事件二的正确处置方法。
4、事件三中检验方法错误,应如何进行检测。
5、简述HDPE膜铺设时的应符合哪些要求。(至少3条)