2020年一级建造师《建筑工程管理与实务》真题
A.筒体
B.剪力墙
C.框架一剪力墙
D.框架结构
A
A.均布荷载
B.线荷载
C.集中荷载
D.活荷载
B
A.HRBB500
B.HRBF500
C.HRB500E
D.HRB600
C
A.流动性
B.黏聚性
C.保水性
D.耐久性
A
A.70.7
B.100
C.150
D.200
C
A.减水剂
B.早强剂
C.缓凝剂
D.膨胀剂
B
A.属酸性石材
B.质地坚硬
C.吸水率高
D.属碱性石材
D
A.机械强度高
B.隔声性能好
C.弹性好
D.单向透视性
B
A.极坐标法
B.角度前方交会法
C.直角坐标法
D.方向线交会法
C
A.观察法
B.钎探法
C.丈量法
D.动力触探
A
A.砌砖墙→绑扎钢筋→浇筑混凝土
B.绑扎钢筋→浇筑混凝土→砌砖墙
C.绑扎钢筋→砌砖墙→浇筑混凝土
D.浇筑混凝土→绑扎钢筋→砌砖墙
C
①结构层、②保温层、③保护层、④找坡层、⑤找平层、⑥防水层
A.①②③④⑤⑥
B.①④⑤⑥②③
C.①②④⑤⑥③
D.①④⑤②③⑥
B
A.硅酮耐候密封胶
B.环氧胶
C.丁基热熔密封胶
D.硅酮结构密封胶
D
A.综合吊装法
B.单件流水法
C.整体吊装法
D.整体提升法
A
A.单股铜线
B.绝缘多股铜线
C.编织软铜线
D.铜绞线
C
A.环境保护管理部门
B.环境管理部门
C.安全生产监督管理部门
D.市政管理部门
D
A.项目负责人
B.项目生产负责人
C.项目安全管理部门
D.企业安全管理部门
D
A.建设单位项目负责人
B.施工单位项目负责人
C.监理单位项目负责人
D.设计单位项目负责人
A
A.宾馆
B.办公楼
C.医院病房
D.住宅楼
C
A.水泥土墙
B.原状土放坡
C.土钉墙
D.排桩
D
A.在防火卷帘的一侧设置启闭装置
B.在防火卷帘的两侧设置启闭装置
C.具有自动控制的功能
D.具有手动控制的功能
E.具有机械控制的功能
B,C,D,E
A.裂缝宽度验算
B.配筋率
C.钢筋间距
D.保护层厚度
E.钢筋锚固长度
C,D,E
A.避雷接地一般每三层与均压环连接
B.防雷构造连接不必进行隐蔽工程验收
C.防雷连接的钢构件上完成后都应进行防锈油漆
D.在有镀膜的构件上进行防雷连接应除去其镀膜层
E.幕墙的金属框架应与主体结构的防雷体系可靠连接
A,C,D,E
A.现场拌制砂浆随拌随用
B.打密封胶时环境温度不宜超过35°C
C.大体积防水混凝土浇筑入模温度不应高于30°C
D.不应进行钢结构安装
E.混凝土的坍落度不宜小于70mm
A,B,C,E
A.详尽
B.真实
C.及时
D.明确
E.有效
A,D,E
A.回填料应控制含水率
B.根据回填工期要求,确定压实遍数
C.下层的压实系数试验合格后,进行上层施工
D.冬期回填时,分层厚度可适当增加
E.先有取样点位布置图,后有试验结果表
某工程项目部根据当地政府要求进行新冠疫情后复工,按照住建部《房屋市政工程复工复产指南》(建办质(2020)8号)规定,制定了《项目疫情防控措施),其中规定有:
(1)施工现场采取封闭式管理。严格施工区等“四区”分离,并设置隔离区和符合标准的隔离室:
(2)根据工程规模和务工人员数量等因素,合理配备疫情防控物资;
(3)现场办公场所、会议室、宿舍应保持通风,每天至少通风3次,并定期对上述重点场所进行消毒。
项目部制定的《模板施工方案》中规定有:
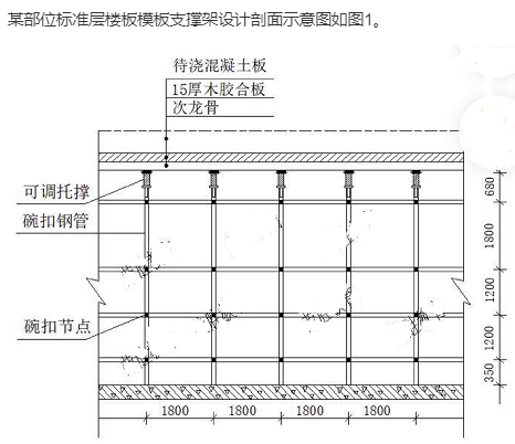
(1)模板选用15mm厚木胶合板,木枋格栅、围檩:
(2)水平模板支撑采用碗扣式钢管脚手架,顶部设置可调托撑:
(3)碗扣式脚手架钢管材料为Q235级,高度超过4m,模板支撑架安全等级按1级要求设计:
(4)模板及其支架的设计中考虑了下列各项荷载:
1)模板及其支架自重(G1)
2)新浇筑混凝土自重(G2)
3)钢筋自重(G3)
4)新浇筑混凝土对模板侧面的压力(G4)
5)施工人员及施工设备产生的荷载(Q1)
6)浇筑和振捣混凝土时产生的荷载(Q2)
7)泵送混凝土或不均匀堆载等附加水平荷载(Q3)
8)风荷载(Q4)
进行各项模板设计时,参与模板及支架承载力计算的荷载项见表1。


问题:
1、《项目疫情防控措施》规定的“四区”中除施工区外还有哪些?施工现场主要防疫物资有哪些?需要消毒的重点场所还有哪些?
2、作为混凝土浇筑模板的材料种类都有哪些?(如木材)
3、写出表1中其他模板与支架承载力计算内容项目的参与荷载项。(如:支架水平杆及节点承载力:G1、G2、G3、Q1)
4、指出图1中模板支撑架剖面图中的错误之处。
某新建住宅群体工程,包含10栋装配式高层住宅,5栋现浇框架小高层公寓,1栋社区活动中心及地下车库,总建筑面积31.5万m3,开发商通过邀请招标确定甲公司为总承包施工单位。开工前,项目部综合工程设计、合同条件、现场场地分区移交、陆续开工等因素编制本工程施工组织总设计,其中施工进度总计划在项目经理领导下编制,编制过程中,项目经理发现该计划编制说明中仅有编制的依据,未体现计划编制应考虑的其他要素,要求编制人员补充。社区活动中心开工后,由项目技术负责人组织。专业工程师根据施工进度总计划编制社区活动中心施工进度计划,内部评审中项目经理提出C、G、J工作由于特殊工艺共同租赁一台施工机具,在工作B、E按计划完成的前提下,考虑该机具租赁费用较高,尽量连续施工,要求对进度计划进行调整。经调整,最终形成既满足工期要求又经济可行的进度计划。社区活动中心调整后的部分方案计划如图2。

图2社区活动中心施工进度计划(部分)公司对项目部进行月度生产检查时发现,因连续小雨影响,D工作实际进度较计划进度滞后2天,要求项目部在分析原因的基础上制定进度事后控制措施。本工程完成全部结构施工内容后,在主体结构验收前,项目部制定了结构实体检验专项方案,委托具有相应资质的检测单位在监理单位见证下对涉及混凝土结构安全的有代表性的部位进行钢筋保护层厚度等检测,检测项目全部合格。
问题:
1、指出背景资料中施工进度计划编制中的不妥之处。施工进度总计划编制说明还包含哪些内容?
2、列出图2调整后有变化的逻辑关系(以工作节点表示如:①→②或②→③。计算调整后的总工期,列出关键线路(以工作名称表示如:A-→D)。3、按照施工进度事后控制要求,社区活动中心应采取的措施有哪些?
4、主体结构混凝土子分部包含哪些分项工程?结构实体检验还应包含哪些检测项目?
发包人负责采购的装配式混凝土构件,提前一个月运抵合同约定的施工现场,监理会同施工验收合格。为了节约场地,承包人将构件集中堆放,由于堆放层数过多,导致下层部分构件出现裂缝。两个月后,发包人在承包人准备安装此构件时知悉此事。发包人要求施工方检验并赔偿损失,施工方以材料早到场为由,拒绝赔偿。
施工单位没有隐蔽验收直接施工,监理要求验收。
静压力桩,“先深后浅,先大后小,先长后短,先密后疏”。使用抱箍式方法接桩,接头高出地面0.8m。存在部分二类桩。
问题:
1、招投标过程中的不妥之处?
2、施工方拒绝赔偿的做法是否合理?并说明理由。施工方可获得赔偿几个月的材料保管费?
3、叠合板钢筋隐蔽验收检验项目?材料质量控制还有哪些环节?
4、施工顺序是否正确?静力桩接头不妥之处?桩基分几类?二类桩的特点?
幕墙分包单位直接将竣工验收资料移交给建设单位

土方挖运综合单价为25元/m³,基坑开挖过程中发现一个混凝土泄洪沟,外围尺寸25×4×4(m)壁厚均为400mm,拆除综合单价为520元/m³。
【问题】
1.结算时钢筋的综合单价是多少,钢筋分项的结算价款是多少。
2.分包单位提交竣工验收资料的过程是否正确?竣工验收资料提交流程?
3.列式分析各个因素对结算价款的影响。
4.施工单位就土方挖运可向建设单位索要工程款?
公司安全部门]在年初的安全检查规划中按照相关要求明确了对项目安全检查的主要形式,包括定期安全检查,开工,复工安全检查,季节性安全检查等。确保项目施工过程中全覆盖,进入夏季后,公司项目管理部对该项目工人宿舍和食堂进行了检查。个别宿舍内床铺均为2层,住有18人,设置有生活用品专用柜,窗户为封闭式窗户,防止他人进入,通道宽度为0.8米,食堂办理了卫生许可证,3名炊事人员均有健康证,上岗符合个人卫生相关规定。检查后项目管理部对工人宿舍的不足提出了整改要求,并限期达标。工程竣工后,根据合同要求相关部门对该工程进行绿色建筑评价,评价指标中“生活便利”该分值低,施工单位将评分项“出行无障碍”等4项指标进行了逐一分析以便得到改善,评价分值如表5-2
问题:
1、写出表5-1中A-F所对应内容(如A:*万m2),施工安全评定结论分几个等级,评价依据有哪些?
2、建筑工程施工安全检查还有哪些形式?
3、指出工人宿舍管理的不妥之处并改正。在炊事员上岗期间,从个人卫生角度还有哪些具体管理?
4、列式计算该工程绿色建筑总得分Q,该建筑属于哪个等级,还有哪些等级?生活便利评分还有什么指标?