2019年一级建造师《市政公用工程管理与实务》真题
A.逐渐增强
B.逐渐减弱
C.保持一致
D.不相关
B
A.骨架-密实
B.悬浮-密实
C.骨架-空隙
D.悬浮-空隙
A
A.环刀法、灌砂法和灌水法
B.环刀法、钻芯法和灌水法
C.环刀法、钻芯法和灌砂法
D.灌砂法、钻芯法和灌水法
A
A.高频振动,低速度摊铺
B.高频振动,高速度摊铺
C.低频振动,低速度摊铺
D.低频振动,高速度摊铺
D
A.支架搭设
B.基坑降水
C.基础钢筋
D.基础模板
C
A.用途
B.跨径
C.材料
D.人行道位置
A
A.焊接
B.法兰连接
C.环氧类结构胶连接
D.机械连接
C
A.预制梁可直接支撑在混凝土存放台座上
B.构件应按其安装的先后顺序编号存放
C.多层叠放时,各层垫木的位置在竖直线上应错开
D.预应力混凝土梁存放时间最长为6个月
B
A.劈裂注浆
B.渗透注浆
C.压密注浆
D.电动化学注浆
B
A.正台阶法
B.中洞法
C.全断面法
D.环形开挖预留核心土法
C
A.混凝法
B.生物膜法
C.活性污泥法
D.筛滤截流法
A
A.第一节制作高度与刃脚部分齐平
B.设计无要求时,混凝土强度应达到设计强度等级60%,方可拆除模板
C.混凝土施工缝采用凹凸缝并应凿毛清理干净
D.设计要求分多节制作的沉井,必须全部接高后方可下沉
C
A.机械开挖时,可以直接挖至槽底高程
B.槽底土层为杂填土时,应全部挖除
C.沟槽开挖的坡率与沟槽开挖的深度无关
D.无论土质如何,槽壁必须垂直平顺
B
A.含水量最大偏差不宜超过8%
B.全部采用砂性土压实做填埋层的防渗层
C.施工企业必须持有道路工程施工的相关资质
D.振动压路机碾压控制在4~6遍
D
A.“由局部到整体,先细部后控制”
B.“由局部到整体,先控制后细部”
C.“由整体到局部,先控制后细部”
D.“由整体到局部,先细部后控制”
C
A.管理体系
B.质量、安全保证计划
C.技术规范及检验标准
D.施工方案
D
A.警告标志
B.指令标志
C.指示标志
D.禁止标志
B
A.早强
B.补偿收缩
C.缓凝
D.干硬性
D
A.大直径,大间距
B.大直径,小间距
C.小直径,大间距
D.小直径,小间距
D
A.粘层、透层、封层严禁冬期施工
B.水泥混凝土拌合料温度应不高于35℃
C.水泥混凝土拌合料可加防冻剂、缓凝剂,搅拌时间适当延长
D.水泥混凝土板弯拉强度低于1MPa或抗压强度低于5MPa时,不得受冻
C
A.检查井周围
B.纵向施工缝
C.小半径平曲线
D.板厚改变
E.邻近桥梁
A,C,D,E
A.原地面标高低于设计路基标高时,需要填筑土方
B.土层填筑后,立即采用8t级压路机碾压
C.填筑前,应妥善处理井穴、树根等
D.填方高度应按设计标高增加预沉量值
E.管涵顶面填土300mm以上才能用压路机碾压
A,C,D
A.施工压实设备变化
B.施工温度的变化
C.原材料含水量变化
D.集料的颗粒组成变化
E.运输距离变化
B,C,D,E
A.支座顶面高程
B.支座垫石顶面高程
C.盖梁顶面高程
D.支座与垫石的密贴程度
E.支座进场检验
B,D,E
A.一般由钢梁和钢筋混凝土桥面板两部分组成
B.在钢梁与钢筋混凝土板之间设传剪器都作用是使二者共同工作
C.适用于城市大跨径桥梁
D.桥面混凝土浇筑应分车道分段施工
E.浇筑混凝土桥面时,横桥向应由两侧向中间合拢
A,B,C
A.管道安装前,应完成支、吊架的安装和防腐处理
B.管道的管径、壁厚和材质应符合设计要求,并经验收合格
C.管件制作和可预组装的部分宜在管道安装前完成
D.补偿器应在管道安装前先与管道连接
E.安装前应对中心线和支架高程进行复核
甲公司中标某城镇道路工程,设计道路等级为城市主干路,全长560m,横断面型式为三幅路,机动车道为双向六车道,路面面层结构设计采用沥青混凝土,上面层为厚40mmSMA-13,中面层为厚60mmAC-20,下面层为厚80mmAC-25。
施工过程中发生如下事件:
事件一:甲公司将路面工程施工项目分包给具有相应施工资质的乙公司施工,建设单位发现后立即制止了甲公司的行为。
事件二:路基范围内有一处干涸池塘,甲公司将原始地貌杂草清理后,在挖方段取土一次性将池塘填平并碾压成型,监理工程师发现后责令甲公司返工处理。
事件三:甲公司编制的沥青混凝土施工方案包括以下要点:
1)上面层摊铺分左、右幅施工,每幅摊铺采用一次成型的施工方案,2台摊铺机呈梯队方式推进,并保持摊铺机组前后错开40~50m距离。
2)上面层碾压时,初压采用振动压路机,复压采用轮胎压路机,终压采用双轮钢筒式压路机。
3)该工程属于城市主干路,沥青混凝土面层碾压结束后需要快速开放交通,终压完成后拟洒水加快路面的降温速度。
事件四:确定了路面施工质量检验的主控项目及检验方法。
问题:
1.事件一中,建设单位制止甲公司的分包行为是否正确?说明理由。
2.指出事件二中的不妥之处。
3.指出事件三中的错误之处并改正。
4.写出事件四中沥青混凝土路面面层施工质量检验的主控项目(原材料除外)及检验方法。
某公司承建长1.2km的城镇道路大修工程,现状路面面层为沥青混凝土,主要施工内容包括:对沥青混凝土路面沉陷、碎裂部位进行处理;局部加铺网孔尺寸10mm玻纤网以减少旧路面对新沥青面层的反射裂缝;对旧沥青混凝土路面铣刨拉毛后加铺厚40mmAC-13沥青混凝土面层,道路平面如图2所示。机动车道下方有一条DN800mm污水干线,垂直于该干线有一条DN500mm混凝土污水管支线接入,由于污水支线不能满足排放量要求,拟在原位更新为DN600mm,更换长度50m,如图2中2#~2’#井段。

项目部在处理破损路面时发现挖补深度介于50~150mm之间,拟用沥青混凝土一次补平。在采购玻纤网时被告知网孔尺寸10mm的玻纤网缺货,拟变更为网孔尺寸20mm的玻纤网。
交通部门批准的交通导行方案要求:施工时间为夜间22:30至次日5:30,不断路施工。为加快施工速度,保证每日5:30前恢复交通,项目部拟提前一天采用机械洒布乳化沥青(用量0.8L/m2),为第二天沥青面层摊铺创造条件。
项目部调查发现:2#~2’#井段管道埋深约3.5m,该深度土质为砂卵石,下穿既有电信、电力管道(埋深均小于1m),2’#井处具备工作井施工条件,污水干线夜间水量小且稳定支管接入时不需导水,2#~2’#井段施工期间上游来水可导入其他污水管。结合现场条件和使用需要,项目部拟从开槽法、内衬法、破管外挤法及定向钻法等4种方法中选择一种进行施工。
在对2#井内进行扩孔接管作业之前,项目部编制了有限空间作业专项方案和事故应急预案并经过审批;在作业人员下井前打开上、下游检查井通风,对井内气体进行检测后未发现有毒气体超标;在打开的检查井周边摆放了反光锥桶。完成上述准备工作后,检测人员带着气体检测设备离开了现场,此后2名作业人员未穿戴防护设备下井施工,由于施工时扰动了井底沉积物,有毒气体逸出,造成作业人员中毒,虽救助及时未造成人员伤亡,但暴露了项目部安全管理的漏洞,监理因此开出停工整顿通知。
问题:
1.指出项目部破损路面处理的错误之处并改正。
2.指出项目部玻纤网更换的错误之处并改正。
3.改正项目部为加快施工速度所采取的措施的错误之处。
4.四种管道施工方法中哪种方法最适合本工程?分别简述其它三种方法不适合的主要原因。
5.针对管道施工时发生的事故,补充项目部在安全管理方面采取的措施。
某市政企业中标一城市地铁车站项目,该项目地处城郊结合部,场地开阔,建筑物稀少,车站全长200m,宽19.4m,深度16.8m,设计为地下连续墙围护结构,采用钢筋混凝土支撑与钢管支撑,明挖法施工。本工程开挖区域内地层分布为回填土、粘土、粉砂、中粗砂及砾石,地下水位位于3.95m处。详见图3。

项目部依据设计更求和工程地质资料编制了施工组织设计。施工组织设计明确以下内容:
(1)工程全长范围内均采用地下连续墙围护结构,连续墙顶部设有800×100mm的冠梁;钢筋混凝土支撑与钢管支撑的间距为:垂直间距4~6m,水平间距为8m。主体结构采用分段跳仓施工,分段长度为20m。
(2)施工工序为:围护结构施工→降水→第一层土方开挖(挖至冠梁底面标高)→A→第二层土方开挖→设置第二道支撑→第三层土方开挖→设置第三道支撑→最底层开挖→B→拆除第三道支撑→C→负二层中板、中板梁施工→拆除第二道支撑→负一层侧墙、中柱施工→侧墙顶板施工→D。
(3)项目部对支撑作业做了详细的布置:围护结构第一道釆用钢筋混凝土支撑,第二、三道釆用φ609×16mm的钢管支撑,钢管支撑一端为活络头,采用千斤顶在该侧施加预应力,预应力加设前后的12h内应加密监测频率。
(4)后浇带设置在主体结构中间部位,宽度为2m,当两侧混凝土强度达到100%设计值时,开始浇筑。
(5)为防止围护变形,项目部制定了开挖和支护的具体措施:
a.开挖范围及开挖、支撑顺序均应与围护结构设计工况相一致。
b.挖土要严格按照施工方案规定进行。
c.软土基坑必须分层均衡开挖。
d.支护与挖土要密切配合,严禁超挖。
问题:
1.根据背景资料本工程围护结构还可以采用哪些方式。
2.写出施工工序中代号A、B、C、D对应的工序名称。
3.钢管支撑施加预应力前后,预应力损失如何处理?
4.后浇带施工应有哪些技术要求?
5.补充完善开挖和支护的具体措施。
某公司承建一座城市快速路跨河桥梁,该桥由主桥、南引桥和北引桥组成,分东、西双幅分离式结构,主桥中跨下为通航航道,施工期间航道不中断。主桥的上部结构采用三跨式预应力混凝土连续刚构,跨径组合为75m+120m+75m;南、北引桥的上部结构均采用等截面预应力混凝土连续箱梁,跨径组合为(30m×3)×5;下部结构墩柱基础采用混凝土钻孔灌注桩,重力式U型桥台;桥面系护栏采用钢筋混凝土防撞护栏;桥宽35m,横断面布置采用0.5m(护栏)+15m(车行道)+0.5m(护栏)+3m(中分带)+0.5m(护栏)+15m(车行道)+0.5m(护栏);河床地质自上而下为厚3m淤泥质黏土层、厚5m砂土层、厚2m砂层、厚6m卵砾石层等;河道最高水位(含浪高)高程为19.5m,水流流速为1.8m/s。桥梁立面布置如下所示:

项目部编制的施工方案有如下内容:
(1)根据主桥结构特点及河道通航要求,拟定主桥上部结构的施工方案,为满足施工进度计划要求,施工时将主桥上部结构划分成ⓞ、①、②、③等施工区段,其中,施工区段ⓞ的长度为14m,施工区段①每段施工长度为4m,采用同步对称施工原则组织施工,主桥上部结构施工区段划分如图4所示。
(2)由于河道有通航要求,在通航孔施工期间采取安全防护措施,确保通航安全。
(3)根据桥位地质、水文、环境保护、通航要求等情况,拟定主桥水中承台的围堰施工方案,并确定了围堰的顶面高程。
(4)防撞护栏施工进度计划安排,拟组织2个施工组同步开展施工,每个施工班级投入1套钢模板,每套钢模板长91m,每钢模板的施工周转效率为3天。施工时,钢模板两端各0.5m作为导向模板使用。
问题:
1.列式计算该桥多孔跨径总长;根据计算结果指出该桥所属的桥梁分类。
2.施工方案(1)中,分别写出主桥上部结构连续刚构及施工区段②最适宜的施工方法;列式计算主桥16号墩上部结构的施工次数(施工区段③除外)。
3.结合图4及施工方案(1),指出主桥“南边孔、跨中孔、北边孔”先后合龙的顺序(用“南边孔、跨中孔、北边孔”及箭头“→”作答;当同时施工时,请将相应名称并列排列;指出施工区段③的施工时间应选择一天中的什么时候进行?
4.施工方案(2)中,在通航孔施工期间应采取哪些安全防护措施?
5.施工方案(3)中,指出主桥第16、17号墩承台施工最适宜的围堰类型;围堰高程至少应为多少米?
6.依据施工方案(4),列式计算防撞护栏的施工时间。(忽略伸缩缝位置对护栏占用的影响)
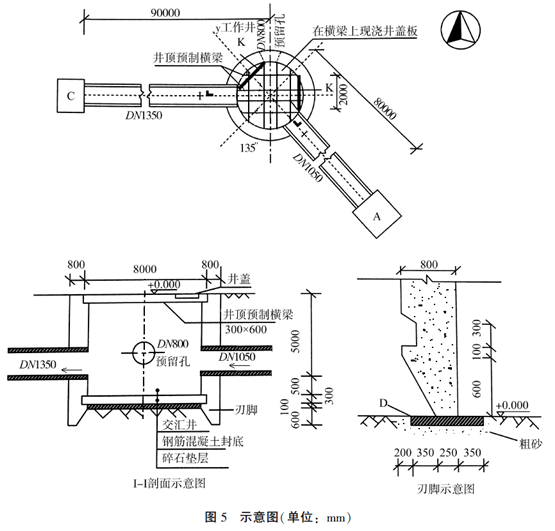
项目部承接一项顶管工程,其中DN1350mm管道为东西走向,长度90m;DN1050mm管道为偏东南方向走向,长度80m,设计要求始发工作井y采用沉井法施工,接收井A、C为其他标段施工(如图5示),项目部按程序和要求完成了各项准备工作。

开工前,项目测量员带一测量小组按建设单位给定的测量资料进行高程点与y井中心坐标的布设,布设完毕后随即将成果交予施工员组织施工。
按批准的进度计划先集中力量完成y井的施工作业,按沉井预制工艺流程,在已测定的圆周中心线上按要求铺设粗砂与D,采用定型钢模进行刃脚混凝土浇筑,然后按顺序先设置E与F、安装绑扎钢筋,再设置内、外模,最后进行井壁混凝土浇筑。
下沉前,需要降低地下水(已预先布置了喷射井点),采用机械取土;为防止y井下沉困难,项目部预先制定了下沉辅助措施。
y井下沉到位,经检验合格后,顶管作业队进场按施工工艺流程安装设备:K→千斤顶就位→观测仪器安放→铺设导轨→顶铁就位。为确保首节管节能顺利出洞,项目部按预先制定的方案在y井出洞口进行土体加固:加固方法采用高压旋喷注浆,深度6m(地质资料显示为淤泥质黏土)。
问题:
1.按测量要求,该小组如何分工?测量员将测量成果交予施工员的做法是否正确,应该怎么做?
2.按沉井预制工艺流程写出D、E、F的名称;本项目对刃脚是否要加固,为什么?
3.降低地下水的高程至少为多少米(列式计算)?有哪些机械可以取土?下沉辅助措施有哪些?
4.写出K的名称,应该布置在何处?按顶管施工的工艺流程,管节启动后,出洞前应检查哪些部位?
5.加固出洞口的土体用哪种浆液,有何作用?注意顶进轴线的控制,做到随偏随纠,通常纠偏有哪几种方法?