2020年一级建造师《市政公用工程管理与实务》真题
A.热拌沥青混合料面层
B.冷拌沥青混合料面层
C.沥青贯入式面层
D.沥青表面处治面层
D
A.压缩性高、透水性大
B.压缩性高、透水性小
C.压缩性低、透水性大
D.压缩性低、透水性小
B
A.上层滞水
B.潜水
C.承压水
D.毛细水
C
A.振动压路机
B.钢轮压路机
C.重型轮胎压路机
D.双轮钢筒式压路机
A
A.受力钢筋的交叉点
B.单向受力钢筋网片外围两行钢筋交叉点
C.单向受力钢筋网中间部分交叉点
D.双向受力钢筋的交叉点
C
A.支座传递上部结构承受的荷载
B.支座传递上部结构承受的位移
C.支座传递上部结构承受的转角
D.支座对桥梁变形的约束应尽可能的大,以限制梁体自由伸缩
D
A.吊运时,混凝土强度不得低于设计强度的75%
B.存放时,支点处应采用垫木支承
C.存放时间可长达3个月
D.同长度的构件,多层叠放时,上下层垫木在竖直面上应适当错开
D
A.产品合格证
B.钢梁制造环境的温度、湿度记录
C.钢材检验报告
D.工厂试拼装记录
B
A.管道接口
B.管道基础
C.沟槽回填
D.管道坡度
C
A.重力式水泥土挡墙
B.地下连续墙
C.预制混凝土板桩
D.SMW工法桩
B
A.①-③-④-②-⑤
B.①-②-③-④-⑤
C.①-④-②-③-⑤
D.①-②-④-③-⑤
A
A.在粉细砂土层采用不排水下沉时,井内水位应高出井外水位0.5m
B.沉井下沉时,需对沉井的标高、轴线位移进行测量
C.大型沉井应进行结构内力监测及裂缝观测
D.水下封底混凝土强度达到设计强度等级的75%时,可将井内水抽除
B
A.薄板结构
B.抗渗性好
C.抗地层变位性好
D.配筋率高
C
A.砌体的沉降缝应与基础沉降缝贯通,变形缝应错开
B.砖砌拱圈应自两侧向拱中心进行,反拱砌筑顺序反之
C.检查井砌筑完成后再安装踏步
D.预制拼装构筑物施工速度快、造价低,应推广使用
B
A.管道与阀门连接处
B.管道支架处
C.保护套管中
D.穿过构筑物结构处
A
A.碳酸钠(Na2CO3)
B.氧化镁(MgO)
C.碳酸钙(CaCO3)
D.氧化硅(SiO2)
C
A.施工中
B.施工前
C.勘察
D.竣工
D
A.投标保证金
B.投标报价
C.投标函
D.施工方案
B
A.工程项目的经济风险
B.业主资格风险
C.外界环境风险
D.隐含的风险条款
C
A.消化池
B.生物反应池
C.曝气池
D.沉淀池
A
A.普通沥青混合料
B.沥青碎石混合料
C.改性沥青混合料
D.OGFC排水沥青混合料
E.沥青玛蹄脂碎石混合料
B,D
A.空隙率
B.配合比
C.马歇尔稳定度
D.车辙试验动稳定度
E.流值
A,C,E
A.桥墩处的上部结构之间
B.桥台端墙与上部结构之间
C.连续梁桥最大负弯矩处
D.梁式桥的跨中位置
E.拱式桥拱顶位置的桥面处
A,B
A.出入口及通道
B.通风道
C.风亭
D.冷却塔
E.轨道及道床
A,B,C,D
A.无粘结预应力筋不允许有接头
B.封锚外露预应力筋保护层厚度不小于50mm
C.封锚混凝土强度等级不得低于C40
D.安装时,每段预应力筋计算长度为两端张拉工作长度和锚具长度
E.封锚前无粘结预应力筋应切断,外露长度不大于50mm
A,B,C
A.重要部位的地基与基础,由总监理工程师组织,施工单位、设计单位项目负责人参加验收
B.检验批及分项工程,由专业监理工程师组织施工单位专业质量或技术负责人验收
C.单位工程中的分包工程,由分包单位直接向监理单位提出验收申请
D.整个建设项目验收程序为:施工单位自验合格,总监理工程师验收认可后,由建设单位组织各方正式验收
E.验收时,对涉及结构安全、使用功能等重要的分部工程,需提供抽样检测合格报告
A.工程本身的损害由发包人承担
B.承包人人员伤亡所产生的费用,由发包人承担
C.承包人的停工损失,由承包人承担
D.运至施工现场待安装设备的损害,由发包人承担
E.工程所需清理、修复费用,由发包人承担
某单位承建城镇主干道大修工程,道路全长2km,红线宽50m,路幅分配情况如图1-1所示,现状路面结构为40mmAC-13细粒式沥青混凝土上面层,60mmAC-20中粒式沥青混凝土中面层,80mmAC-25粗粒式沥青混凝土下面层。工程主要内容为:①对道路破损部位进行翻挖补强。②铣刨40mm旧沥青混凝土上面层后,加铺40mmSMA-13沥青混凝土上面层。接到任务后,项目部对现状道路进行综合调查,编制了施工组织设计和交通导行方案。并报监理单位及交通管理部门审批,导行方案如图1-2所示,因办理占道、挖掘等相关手续,实际开工如期比计划日期滞后2个月。


道路封闭施工过程中,发生如下事件:
事件1:项目部进场后对沉陷、坑槽等部位进行了翻挖探查,发现左幅基层存在大面积弹软现象,立即通知相关单位现场确定处理方案,拟采用400mm厚水泥稳定碎石分两层换填,并签字确认。
事件2:为保证工期,项目部集中力量迅速完成了水泥稳定碎石基层施工,监理单位组织验收结果为合格。项目部完成AC-25下面层施工后对纵向接缝进行了简单清扫便开始摊铺AC-20中面层,最后转换交通进行右幅施工。由于右幅道理基层没有破损现象。考虑到工期紧,在沥青摊铺前对既有路面铣刨、修补后,项目部申请全路线封闭施工,报告批准后开始进行上面层摊铺工作。
问题:
1、交通导行方案还需报哪个部门审批?
2、根据交通导行平面示意图,请指出图中①、②、③、④各为哪个疏导作业区?
3、事件1中,确定基层处理方案需要哪些单位参加?
4、事件2中,水泥稳定碎石基层检验与验收的主控项目有哪些?
5、请指出沥青摊铺工作的不妥之处,并给出正确做法。
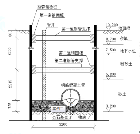
某公司承建一项城市污水管道工程,管道全长1.5km。采用DN1200mm的钢筋混凝土管,管道平均覆土深度约6m。考虑现场地质水文条件,项目部准备采用“拉森钢板桩+钢围檩+钢支撑”的支护方式,沟槽支护情况详见图2。

图2沟槽支护示意图(标高单位:m;尺寸单位:mm)
项目部编制了“沟槽支护,土方开挖”专项施工方案,经专家论证,因缺少降水专项方案被制定为“修改后通过”。项目部经计算补充了管井降水措施,方案获“通过”,项目进入施工阶段。在沟槽开挖到槽底后进行分项工程质量验收,槽底无浸水,扰动,槽底高程、中线、宽度符合设计要求。项目部认为沟槽开挖验收合格,拟开始后续垫层施工。在完成下游3个井段管道安装及检查井砌筑后,抽取其中1个井段进行了闭水试验。试验渗水量为0.0285L/(min.m)。[规范规定ND1200钢筋混凝土管合格渗水量不大于43.3m3/24h.km]。为加快施工进度,项目部拟增加现场作业人员。
问题:
1、写出钢板桩围护方式的优点。
2、管井成孔时是否需要泥浆护壁,写出滤管与孔壁间填充滤料的名称,写出确定滤管内径的因素是什么?
3、写出项目部”沟槽开挖"分项工程质量验收中缺失的项目。
4、列式计算该井段闭水试验渗水量结果是否合格?
5、写出新进场工人上岗前应具备的条件。
某公司承建一座跨河城市桥梁,基础均采用φ1500mm钢筋混凝土钻孔灌注桩,设计为端承桩,桩底嵌入中风化岩层2D(D为桩基直径);桩顶采用盖梁连接,盖梁高度为1200mm,顶面标高为20.000m。河床地基揭示依次为淤泥、淤泥质黏土、黏土、泥岩、强风化岩、中风化岩。
项目部编制的桩基施工方案明确如下内容:
(1)下部结构施工采用水上作业平台施工方案,水上作业平台结构为φ600mm钢管桩+型钢+人字钢板搭设,水上作业平台如图3所示;
(2)根据桩基设计类型及桥位、水文、地质笔情况设备选用“2000型”正循环回旋钻孔施工(另配牙轮钻头等),成桩方式未定。
(3)图中A结构名称和使用的相关规定。
(4)由于设计对孔底沉渣厚度未做具体要求,灌注水下混凝土前,进行二次清孔,当孔底沉渣厚度满足规范要求后,开始灌注水下混凝土。

问题:
1、结合背景资料及图3,指出水上作业平台应设置哪些安全设施?
2、施工方案(2)中,指出项目部选择钻机类型的理由及成桩方式。
3、施工方案(3)中,所指构件A的名称是什么?构件A施工时需使用哪些机械配合,构件A应高出施工水位多少米?
4、结合背景资料及图3,列式计算3#-①桩的桩长。
5、在施工方案(4)中,指出孔底沉渣厚度的最大允许值。
某市为了交通发展需修建一条双向快速环线(如图4-1所示),里程桩号为K0+000~K19+998.984。建设单位将该建设项目划分为10个标段。项目清单如表4所示,当年10月份进行招标,拟定工期为24个月,同时成立了管理公司,由其代建。

各投标单位按要求中标后,管理公司召开设计交底会,与会参加的有设计、勘察、施工单位等。开会时,有③、⑤标段的施工单位提出自己中标的项目中各有1座泄洪沟小桥的桥位将会制约相邻标段的通行,给施工带来不便,建议改为过路管涵,管理公司表示认同,并请设计单位出具变更通知单,施工现场采取封闭管理,按变更后的图纸组织现场施工。
③标段的施工单位向管理公司提交了施工进度计划横道图(如图4-2所示)


问题:
1、按表4所示,根据各项目特征,该建设项目有几个单位工程?写出其中⑤标段A的项目内容。⑩标段完成的长度为多少米?
2、成立的管理公司担当哪个单位的职责?与会者还缺哪家单位?
3、③⑤标段的施工单位提出变更申请的理由是否合理?针对施工单位提出的变更设计申请,管理公司应如何处理?为保证现场封闭施工,施工单位最先完成与最后完成的工作是什么?
4、写出③标段施工进度计划横道图中出现不妥之处,应该怎样调整?
A公司承建某地下水池工程,为现浇钢筋混凝土结构。混凝土设计强度为C35,抗渗等级为P8。水池结构内设有三道钢筋混凝土隔墙,顶板上设置有通气孔及人孔,水池结构如图5-1、5-2所示。
A公司项目部将场区内降水工程分包给B公司。结构施工正值雨期,为满足施工开挖及结构抗浮要求,B公司编制了降排水方案,经项目部技术负责人审批后报送监理单位。
水池顶板混凝土采用支架整体现浇,项目部编制了顶板支架支拆施工方案,明确了拆除支架时混凝土强度、拆除安全措施,如设置上下爬梯、洞口防护等。
项目部计划在顶板模板拆除后,进行底板防水施工,然后再进行满水试验,被监理工程师制止。
项目部编制了水池满水试验方案,方案中对试验流程、试验前准备工作、注水过程、水位观测、质量、安全等内容进行了详细的描述,经审批后进行了满水试验。


问题:
1、B公司方案报送审批流程是否正确?说明理由。
2、请说明B公司降水注意事项、降水结束时间。
3、项目部拆除顶板支架时混凝土强度应满足什么要求?请说明理由。请列举拆除支架时,还有哪些安全措施?
4、请说明监理工程师制止项目部施工的理由。
5、满水试验前,需要对哪个部位进行压力验算?水池注水过程中,项目部应关注哪些易渗漏水部位?除了对水位观测外,还应进行哪个项目观测?
6、请说明满水试验水位观测时,水位测针的初读数与末读数的测读时间;计算池壁和池底的浸湿面积(单位:m2)。